
Makarska, Blato - Moderní středomořský projekt v blízkosti moře
Exkluzivní novostavba v prvotřídní lokalitěO PROJEKTU
V klidné lokalitě na Makarské riviéře se staví rezidenční komplex skládající se ze tří menších budov s celkem 30 byty. Projekt se nachází u vjezdu do obce, pod magistrální silnicí, pouhých 150 metrů od moře.
Byty jsou navrženy s důrazem na funkčnost a příjemné bydlení po celý rok a všechny byty mají terasy nebo lodžie. U každého bytu je zajištěno garážové nebo venkovní parkovací místo, které je zahrnuto v ceně, k dispozici jsou také úložné prostory pro další úložný prostor.
Projekt je zajímavý jak pro zákazníky, kteří hledají apartmán pro dovolenou u moře, tak i pro investory, kteří chtějí nemovitost na atraktivní lokalitě s dobrým turistickým potenciálem. Nastěhování je plánováno ve druhém čtvrtletí roku 2027.
VÝCHOZÍ CENA
DOKONČENÍ PROJEKTU
PLATEBNÍ PLÁN


Kvalitní stavba a pečlivě vybrané materiály
Projekt zahrnuje tři bytové domy se třemi nadzemními podlažími, které jsou navrženy tak, aby poskytovaly funkční byty a příjemný obytný prostor. Zvláštní pozornost je věnována kvalitě materiálů a modernímu vybavení, které umožňuje snadné používání a údržbu.
V bytech je předpokládána keramika formátu 60 × 60 cm v celém prostoru a zákazníci si mohou vybrat ze dvou vybraných odstínů – teplého a studeného tónu. S včasnou dohodou jsou možné i další možnosti dokončovacích materiálů před objednávkou.
Vytápění a chlazení je řešeno pomocí klimatizačního systému. Jedno-pokojové byty mají dvě vnitřní jednotky, zatímco dvou-pokojové mají tři a venkovní jednotky jsou umístěny na střeše budovy. V koupelnách je předpokládán nástěnný elektrický radiátor moderního designu.
Budovy mají kvalitní PVC truhlářství s dvojitým sklem a velké skleněné stěny směrem k terasám a lodžiím. Na větších otvorech se instalují elektrické rolety, zatímco na menších oknech jsou ruční. Byty jsou vybaveny protipožárními vstupními dveřmi a koupelny kvalitním sanitárním vybavením se značkovými bateriemi od renomovaného výrobce Grohe.
Vnější vzhled budovy zdůrazňují skleněné zábradlí na terasách, kamenné detaily a moderní LED osvětlení ve společných prostorách. Projekt zahrnuje i video-telefonní systém od výrobce 2N a výtahy ORONA.

Půdorys
















Všechny jednotky v novostavbě
| ID | Jednotka | Plocha | Patro | Pokoje | Cena | Půdorys | Stav |
|---|---|---|---|---|---|---|---|
| RE293538 | Stan | 84.80m2 | 0 | 3 | 424,000 € | ANO | Dostupné |
| RE161069 | Stan | 96.44m2 | 0 | 3 | 485,000 € | ANO | Dostupné |
| RE336249 | Stan | 56.91m2 | 1 | 2 | 254,000 € | ANO | Dostupné |
| RE234394 | Stan | 72.40m2 | 0 | 3 | 328,000 € | ANO | Dostupné |
| RE983692 | Stan | 58.36m2 | 1 | 2 | 237,000 € | ANO | Dostupné |
| RE695223 | Stan | 72.40m2 | 0 | 3 | 263,000 € | ANO | Prodáno |
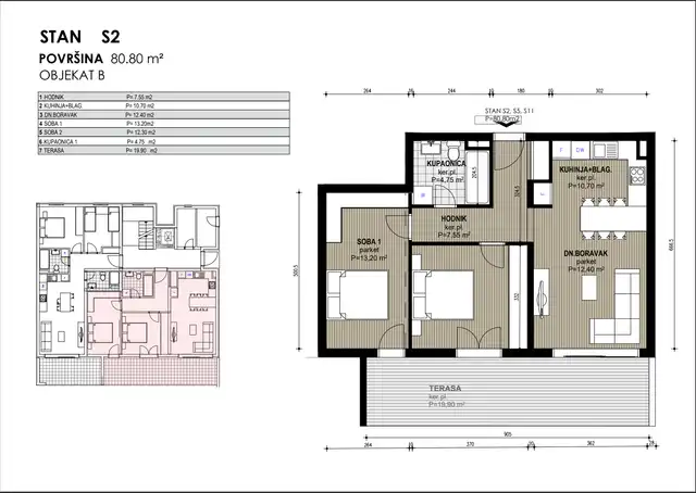
| RE902889 | Stan | 80.80m2 | 0 | 3 | 309,000 € | ANO | Dostupné |
| RE837980 | Stan | 61.25m2 | 3 | 2 | 310,000 € | ANO | Dostupné |
| RE675288 | Stan | 63.95m2 | 3 | 2 | 315,000 € | ANO | Dostupné |
| RE403866 | Stan | 0.00m2 | 3 | 3 | 424,000 € | ANO | Dostupné |
| RE269259 | Stan | 85.20m2 | 2 | 3 | 388,000 € | ANO | Dostupné |
| RE244860 | Stan | 57.25m2 | 1 | 2 | 239,000 € | ANO | Prodáno |
| RE317269 | Stan | 85.20m2 | 1 | 3 | 339,000 € | ANO | Dostupné |
| RE791598 | Stan | 57.25m2 | 0 | 2 | 229,000 € | ANO | Dostupné |
| RE989338 | Stan | 57.25m2 | 0 | 2 | 229,000 € | ANO | Dostupné |
| RE696050 | Stan | 72.20m2 | 0 | 3 | 278,000 € | ANO | Dostupné |
Klidné středomořské prostředí na Makarské riviéře
Blato se nachází v jižní části Makarské riviéry, oblasti, která je považována za jednu z nejatraktivnějších pobřežních zón v Chorvatsku. Tato riviéra je dlouhá přibližně 60 kilometrů a je známá svými dlouhými oblázkovými plážemi, křišťálově čistým mořem a středomořským klimatem s velkým počtem slunečných dnů v roce.
Místo je obklopeno borovým lesem a olivovými háji a nad pobřežím se tyčí hora Biokovo, která vytváří působivou přírodní krajinu a chrání riviéru před kontinentálními vlivy. Právě spojení hory a moře dává této oblasti zvláštní charakter a činí ji jednou z nejkrásnějších částí dalmatského pobřeží.
Makarska, hlavní centrum riviéry s bohatou turistickou a gastronomickou nabídkou, je vzdálena 20 minut autem, zatímco Drvenik s trajektovým přístavem na ostrov Hvar je vzdálen méně než deset kilometrů. V samotném Blatu se nachází i malý přístav, který umožňuje kotvení lodí, což činí tuto lokalitu obzvláště zajímavou pro milovníky moře a námořnictví.
Klidné prostředí, blízkost moře a pláže a blízkost všech důležitých zařízení činí Blato ideálním místem pro dovolenou, ale i velmi atraktivní lokalitou pro koupi bytu na Makarské riviéře.
PLATEBNÍ PLÁN
50%
Záloha30%
Během výstavby20%
Před předánímSpojíme vás s ověřenými nemovitostmi dříve než kdokoli jiný
Populární vyhledávání
Oblíbená místa
Nemovitosti Záhřeb Nemovitosti Split Nemovitosti Zadar Nemovitosti Rijeka Nemovitosti Osijek Nemovitosti Dubrovník Nemovitosti Pula Nemovitosti Šibenik Nemovitosti Varaždín Nemovitosti Karlovac Nemovitosti Makarska Nemovitosti TrogirPopulární kategorie
Byty na prodej Domy na prodej Vily na prodej Bytové jednotky na prodej Byty k pronájmu Domy k pronájmu Vily k pronájmu Bytové jednotky k pronájmu Stavební pozemky Zemědělské pozemky Komerční prostory Luxusní nemovitostiKategorie podle lokality
Byty Záhřeb Byty Split Byty Rijeka Domy Zadar Vily Hvar Bytové jednotky Rovinj Byty Pula Domy Záhřeb Domy Split Domy Dubrovník Domy Rijeka Vily BračRozšířené vyhledávání
Byty na prodej Záhřeb Nemovitosti na prodej Záhřeb Nemovitosti na prodej Split Nemovitosti na prodej Istrie Nemovitosti na prodej Dubrovník Domy na prodej Záhřeb Byty k pronájmu Záhřeb Byty na prodej Split Domy na prodej Split Bytové jednotky na prodej Split Byty k pronájmu Split Bytové jednotky na prodej ZadarOblíbená místa
Nemovitosti Záhřeb Nemovitosti Split Nemovitosti Zadar Nemovitosti RijekaPopulární kategorie
Byty na prodej Domy na prodej Vily na prodej Bytové jednotky na prodejKategorie podle lokality
Byty Záhřeb Byty Split Byty Rijeka Domy ZadarRozšířené vyhledávání
Byty na prodej Záhřeb Nemovitosti na prodej Záhřeb Nemovitosti na prodej Split Nemovitosti na prodej IstrieČasto kladené otázky
Jaké jsou výhody nákupu novostavby?
Existuje záruka na novostavby?
Mohu si koupit novostavbu, která je stále ve výstavbě?
Jak se liší nákup novostavby od nákupu starší nemovitosti?
Co zahrnuje cena novostavby?
Lze novostavby financovat hypotečním úvěrem?
Kdy se mohu nastěhovat do bytu zakoupeného v nové budově?
Co je užívací povolení a proč je důležité?
Jaká je role agentury při nákupu novostavby?
- poradenství při výběru projektu,
- náhled do odhadu nákladů a technických specifikací,
- pomoc při jednáních a rezervacích,
- právní kontrolu dokumentace,
- komunikaci s investorem, bankou a notářem.






