
Split, Klis - Spoj pohodlí, moderní výstavby a panoramatického výhledu
Exkluzivní novostavba v prvotřídní lokalitěO PROJEKTU
Fortis Residence přináší moderní rezidenční projekt, který spojuje moderní design, špičkovou výstavbu a jedinečnou lokalitu. Projekt, umístěný v klidném podhůří Klisu, je určen pro ty, kteří hledají více než jen byt – bezpečný a pohodlný domov s dlouhodobou hodnotou. Je určen rodinám, mladým profesionálům a investorům, kteří chtějí spojit soukromí, funkčnost a trvalou kvalitu.
Lokalita na jižním svahu umožňuje otevřený panoramatický výhled na moře, Split a okolní akvatorium – výhled, který je na trhu stále vzácnější a cennější. Současně vynikající dopravní spojení umožňuje rychlý přístup do města, na dálnici a ke všem důležitým zařízením pro každodenní život.
Budova je navržena jako volně stojící objekt moderních linií, s celkem osmi bytovými jednotkami rozmístěnými přes suterén, přízemí, první a druhé patro. Pro obyvatele jsou zajištěna venkovní parkovací místa za cenu 1 600 EUR/m².
Každá bytová jednotka je navržena tak, aby maximalizovala jižní orientaci a přirozené světlo. Prostorné obývací pokoje s výstupem na balkony a terasy vytvářejí dokonalé spojení vnitřního a venkovního prostoru, zatímco ložnice jsou umístěny v oddělených zónách pro soukromí a komfort.
Fortis Residence přináší vysoké standardy výstavby a finálního vybavení. Železobetonová konstrukce, mezistropní desky o tloušťce 18 cm a plovoucí podlahy s izolací 12 cm zajišťují stabilitu a komfort. Příčky jsou provedeny jako dvojité sádrokartonové desky vyplněné kamennou vlnou o tloušťce 12 cm, což umožňuje špičkovou akustickou a tepelnou izolaci.
Byty budou vybaveny parketami a keramikou první třídy, PVC okny se trojsklem a elektrickými roletami na jižní straně. Další hodnotu přinášejí klimatizační systémy Daikin nebo Mitsubishi, podlahové vytápění, videotelefon a nabíječky pro elektrické automobily. Budova má výtah, zatímco fasáda je obložena izolací z 10 cm kamenné vlny, což zaručuje energetickou účinnost a příjemnou teplotu po celý rok.
Fortis Residence není jen dalším projektem v řadě – je to poslední tohoto rozsahu v Klisu, což z něj činí mimořádně atraktivní a vzácnou příležitost pro kupce.
VÝCHOZÍ CENA
DOKONČENÍ PROJEKTU
PLATEBNÍ PLÁN


Rezidence Fortis – moderní život s panoramatickým výhledem
Fortis Residence přináší jedinečnou příležitost k životu na klidném úpatí Klisu, v projektu, který se svou velikostí a konceptem nebude opakovat. Nachází se na jižním svahu s otevřeným panoramatickým výhledem na moře a Split, tento bytový komplex spojuje ticho přírodního prostředí a vynikající spojení s městem.
Projekt je navržen s důrazem na špičkovou výstavbu a pohodlí jako základ bydlení. Funkční uspořádání, prostorné obývací pokoje a velké terasy umožňují přirozené světlo a maximální využití prostoru, zatímco moderní topné a chladicí systémy zajišťují komfort po celý rok. Energeticky efektivní fasáda a moderní technické standardy navíc snižují náklady na bydlení a činí projekt přizpůsobeným budoucnosti.
Fortis Residence se skládá pouze z osmi bytových jednotek rozmístěných přes suterén, přízemí, první a druhé patro, což kupujícím poskytuje intimní a klidné prostředí. Každý byt má jižní orientaci a otevřené výhledy a parkovací místa jsou k dispozici za cenu 1.600 EUR/m².
Tento projekt je určen pro ty, kteří chtějí více než byt - rodiny, mladé profesionály a investory, kteří hledají dlouhodobou hodnotu, bezpečnost a komfort bydlení. Fortis Residence nabízí domov, kde soukromí, kvalita a výhled do budoucna jsou na prvním místě.

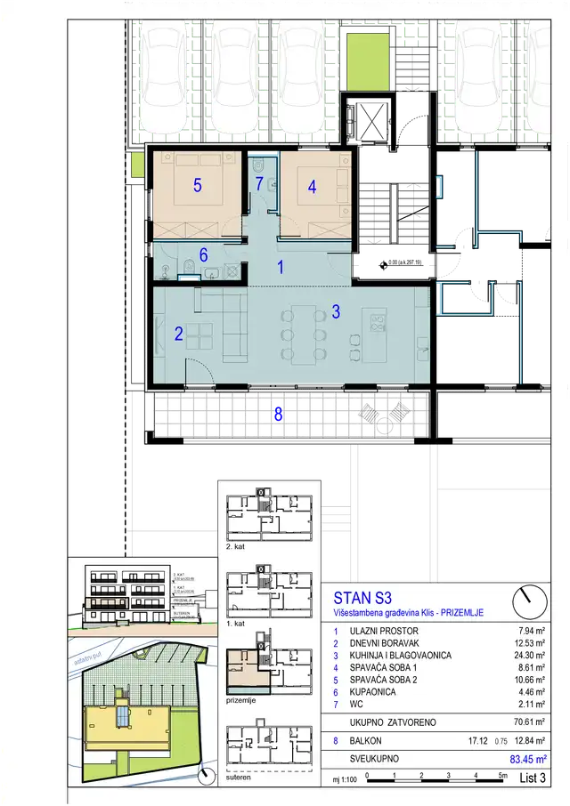
Půdorys








Všechny jednotky v novostavbě
| ID | Jednotka | Plocha | Patro | Pokoje | Cena | Půdorys | Stav |
|---|---|---|---|---|---|---|---|
| RE415958 | Stan | 103.16m2 | 2 | 4 | 545,835 € | ANO | Dostupné |
| RE672367 | Stan | 72.69m2 | 2 | 3 | 384,592 € | ANO | Dostupné |
| RE993996 | Stan | 92.28m2 | 1 | 3 | 459,556 € | ANO | Dostupné |
| RE955016 | Stan | 92.28m2 | 0 | 3 | 430,842 € | ANO | Dostupné |
| RE945660 | Stan | 83.45m2 | 0 | 3 | 389,590 € | ANO | Dostupné |
| RE429941 | Stan | 83.45m2 | 1 | 3 | 415,581 € | ANO | Dostupné |
| RE126596 | Stan | 101.85m2 | 0 | 3 | 443,563 € | ANO | Dostupné |
| RE687129 | Stan | 109.67m2 | 0 | 3 | 477,888 € | ANO | Dostupné |
Exkluzivní novostavba pro život na nejvyšší úrovni
Fortis Residence se nachází na úpatí Klisu, na jižním svahu s otevřeným panoramatickým výhledem na Split, moře a okolní vody. Poloha nabízí jedinečné spojení klidu a soukromí s vynikajícím dopravním spojením. Do Splitu a všech důležitých městských zařízení se dostanete za pouhých pár minut jízdy, zatímco dálnice a letiště jsou vzdáleny jen krátkou dobu, což činí každodenní život a cestování praktickým a jednoduchým.
V bezprostřední blízkosti se nacházejí obchody, sportovní hřiště a veškeré vybavení potřebné pro příjemný život. Blízkost města umožňuje snadný přístup ke kulturním, vzdělávacím a obchodním zónám, zatímco klidné prostředí Klisu zajišťuje každodenní únik od ruchu města.
To, co dělá tuto lokalitu zvláštní, je otevřený výhled na moře a celý splitský záliv – vzácná a cenná hodnota, která zvyšuje kvalitu života a dlouhodobou atraktivitu projektu. Fortis Residence spojuje funkčnost, praktičnost a prestiž a vytváří lokalitu, která je ideální pro život i bezpečnou investici.
PLATEBNÍ PLÁN
30%
Záloha60%
Během výstavby10%
Před předánímSpojíme vás s ověřenými nemovitostmi dříve než kdokoli jiný
Populární vyhledávání
Oblíbená místa
Nemovitosti Záhřeb Nemovitosti Split Nemovitosti Zadar Nemovitosti Rijeka Nemovitosti Osijek Nemovitosti Dubrovník Nemovitosti Pula Nemovitosti Šibenik Nemovitosti Varaždín Nemovitosti Karlovac Nemovitosti Makarska Nemovitosti TrogirPopulární kategorie
Byty na prodej Domy na prodej Vily na prodej Bytové jednotky na prodej Byty k pronájmu Domy k pronájmu Vily k pronájmu Bytové jednotky k pronájmu Stavební pozemky Zemědělské pozemky Komerční prostory Luxusní nemovitostiKategorie podle lokality
Byty Záhřeb Byty Split Byty Rijeka Domy Zadar Vily Hvar Bytové jednotky Rovinj Byty Pula Domy Záhřeb Domy Split Domy Dubrovník Domy Rijeka Vily BračRozšířené vyhledávání
Byty na prodej Záhřeb Nemovitosti na prodej Záhřeb Nemovitosti na prodej Split Nemovitosti na prodej Istrie Nemovitosti na prodej Dubrovník Domy na prodej Záhřeb Byty k pronájmu Záhřeb Byty na prodej Split Domy na prodej Split Bytové jednotky na prodej Split Byty k pronájmu Split Bytové jednotky na prodej ZadarOblíbená místa
Nemovitosti Záhřeb Nemovitosti Split Nemovitosti Zadar Nemovitosti RijekaPopulární kategorie
Byty na prodej Domy na prodej Vily na prodej Bytové jednotky na prodejKategorie podle lokality
Byty Záhřeb Byty Split Byty Rijeka Domy ZadarRozšířené vyhledávání
Byty na prodej Záhřeb Nemovitosti na prodej Záhřeb Nemovitosti na prodej Split Nemovitosti na prodej IstrieČasto kladené otázky
Jaké jsou výhody nákupu novostavby?
Existuje záruka na novostavby?
Mohu si koupit novostavbu, která je stále ve výstavbě?
Jak se liší nákup novostavby od nákupu starší nemovitosti?
Co zahrnuje cena novostavby?
Lze novostavby financovat hypotečním úvěrem?
Kdy se mohu nastěhovat do bytu zakoupeného v nové budově?
Co je užívací povolení a proč je důležité?
Jaká je role agentury při nákupu novostavby?
- poradenství při výběru projektu,
- náhled do odhadu nákladů a technických specifikací,
- pomoc při jednáních a rezervacích,
- právní kontrolu dokumentace,
- komunikaci s investorem, bankou a notářem.







