
Trogir, Sevid - Nouvelle construction luxueuse dans un environnement calme
Nouveau développement exclusif dans un emplacement de premier choixÀ PROPOS DU PROJET
Ce projet résidentiel contemporain est situé dans un environnement méditerranéen paisible à Sevid na Moru, conçu comme une solution exclusive pour les clients à la recherche d'intimité, de qualité de vie et d'une vie à proximité de la mer. Le projet comprend deux petits immeubles résidentiels et est idéal pour la vie de famille, ainsi que pour les clients à la recherche d'un investissement sûr ou d'une propriété de vacances. L'accent est mis sur l'architecture contemporaine, les espaces extérieurs privés et un haut niveau de confort tout au long de l'année.
L'emplacement du projet offre un mélange parfait de tranquillité et de bonnes liaisons de transport. Situé dans un quartier calme de Sevid, le projet permet un mode de vie détendu au bord de la mer, tandis que toutes les commodités importantes des localités environnantes sont accessibles en peu de temps. La proximité de Trogir et Split, ainsi que la connexion à l'aéroport de Split, augmentent encore l'attrait de l'emplacement. L'environnement est calme et résidentiel, avec un accent sur l'intimité, tandis que la mer est à proximité immédiate, permettant de profiter au quotidien du mode de vie méditerranéen.
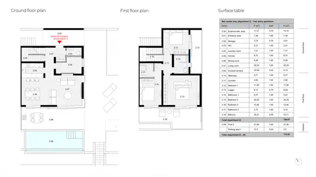
Le complexe se compose de deux immeubles résidentiels distincts à l'architecture moderne, chacun sur deux étages et comprenant un total de trois unités résidentielles. Chaque immeuble est situé sur un terrain d'environ 1000 m² et dispose de quatre places de parking extérieures. Toutes les unités résidentielles sont conçues pour assurer une intimité maximale, une lumière naturelle et une ouverture de l'espace, avec la valeur ajoutée que chaque unité dispose de sa propre piscine privée. Le projet est équipé de systèmes modernes tels que le chauffage et la climatisation par le sol dans toutes les pièces, des volets électriques et un système de porte intelligente, tandis que des matériaux de haute qualité sont utilisés, combinant parquet et céramique.
Des appartements en duplex et des penthouses de différentes tailles sont proposés, tous dotés de vastes espaces extérieurs tels que des terrasses, des balcons ou des loggias, tandis que les unités du rez-de-chaussée offrent en plus des jardins et des piscines privés. Chaque unité dispose d'une place de parking extérieure assurée, et l'agencement des appartements est conçu pour répondre aux besoins de vie modernes, en mettant l'accent sur la fonctionnalité et le confort.
La fin de la construction et l'emménagement sont prévus pour 2028, tandis que le paiement est organisé par phases, conformément à l'avancement des travaux.
Le projet se distingue par un haut niveau de finition, des matériaux de qualité et des solutions techniques modernes qui assurent l'efficacité énergétique et la valeur à long terme de la propriété. La conception architecturale suit le caractère méditerranéen du lieu, avec des lignes épurées et un accent mis sur les espaces extérieurs, créant ainsi un environnement agréable et fonctionnel pour la vie quotidienne.
Le projet est disponible en vente exclusive et pour toute information complémentaire, détails techniques ou pour organiser une visite, nous sommes à votre disposition.
PRIX DE DÉPART
ACHÈVEMENT DU PROJET
PLAN DE PAIEMENT


Confidentialité, mer et valeur d'investissement en un seul projet
Ce projet est conçu pour les clients qui recherchent le calme, l'intimité et une qualité de vie à proximité de la mer, sans renoncer au confort de la vie moderne. L'accent est mis sur de petits immeubles intimes qui assurent un sentiment d'exclusivité et un environnement méditerranéen. Chaque unité résidentielle est conçue comme une entité distincte avec son propre espace extérieur, ce qui augmente encore le niveau d'intimité et de confort.
La valeur particulière du projet réside dans le fait que chaque unité dispose d'une piscine privée et de vues dégagées, ce qui la distingue sur le marché et lui confère un fort potentiel d'investissement. Ce concept de logement permet une relaxation totale et un séjour dans son propre espace sans compromis, qu'il s'agisse d'une résidence permanente ou de vacances.
L'architecture est simple, moderne et fonctionnelle, mettant l'accent sur la lumière naturelle et la connexion entre les espaces intérieurs et extérieurs. Une valeur supplémentaire est apportée par le niveau élevé des équipements et les solutions technologiques qui élèvent le niveau de confort, y compris le chauffage et le refroidissement par le sol, les volets roulants électriques et les systèmes de contrôle intelligents. Tout est conçu pour une utilisation simple et sans souci de la propriété toute l'année.
C'est un projet destiné aux clients qui souhaitent un achat sûr, mais aussi une propriété qui conserve sa valeur dans le temps grâce à son emplacement, son concept et la qualité de sa réalisation. Il convient particulièrement à ceux qui recherchent une combinaison d'intimité, d'ambiance méditerranéenne et de potentiel d'investissement.

Plan






Tous les logements dans le nouveau développement
| ID | Unité | Superficie | Étage | Pièces | Prix | Plan | Statut |
|---|---|---|---|---|---|---|---|
| RE679716 | Appartement | 147.20m2 | 2 | 3 | 900,000 € | OUI | Disponible |
| RE862727 | Appartement | 154.67m2 | 0 | 4 | 800,000 € | OUI | Disponible |
| RE415854 | Appartement | 153.75m2 | 0 | 4 | 800,000 € | OUI | Disponible |
| RE250763 | Appartement | 147.20m2 | 2 | 3 | 900,000 € | OUI | Disponible |
| RE632392 | Appartement | 154.87m2 | 0 | 4 | 800,000 € | OUI | Disponible |
| RE593432 | Appartement | 153.75m2 | 0 | 4 | 800,000 € | OUI | Disponible |
Paix, mer et mode de vie méditerranéen authentique
Sevid na Moru est un petit village dalmate tranquille, réputé pour sa mer cristalline, ses criques naturelles et son mode de vie détendu, loin de l'agitation de la ville. C'est une localité qui conserve un caractère méditerranéen authentique, où règnent l'intimité, le calme et la connexion directe avec la nature.
Situé entre des centres touristiques et urbains plus importants, Sevid offre un équilibre parfait entre tranquillité et accessibilité à toutes les commodités essentielles. C'est cette combinaison qui en fait une destination de plus en plus recherchée pour y vivre et y investir.
La connectivité routière est très bonne grâce à la proximité des principaux axes routiers qui permettent un accès rapide à Trogir, Split et à l'aéroport de Split. Cela rend l'emplacement pratique aussi bien pour la vie quotidienne que pour les voyages internationaux ou la location touristique.
Dans les environs immédiats, on trouve des commodités de base telles que des magasins, des établissements de restauration et des plages locales, tandis que toutes les commodités supplémentaires sont disponibles dans les localités environnantes comme Marina et Trogir. La mer n'est qu'à quelques minutes de marche ou de route, ce qui permet de profiter quotidiennement de la baignade et des activités en plein air.
L'environnement est extrêmement calme et résidentiel, avec une très faible densité de trafic et un minimum de bruit, ce qui en fait un endroit idéal pour une vie relaxante tout au long de l'année. C'est précisément cette intimité et cette sécurité qui constituent l'un des plus grands atouts de cet endroit.
Sevid possède également un fort potentiel d'investissement car il est situé dans une région qui se développe progressivement tout en conservant son littoral naturel et préservé ainsi qu'un caractère exclusif. Cette combinaison de tranquillité, de proximité avec la mer et de construction limitée contribue à la valorisation stable des biens immobiliers à long terme.
Ici, l'ambiance méditerranéenne, l'intimité et la connectivité fonctionnelle se rejoignent, créant un lieu qui convient aussi bien à la vie, aux vacances qu'à l'investissement.
PLAN DE PAIEMENT
30%
Dépôt60%
Pendant la construction10%
Avant la remise du bienNous vous connectons aux biens vérifiés avant tout le monde
Recherches populaires
Localites populaires
Biens immobiliers Zagreb Biens immobiliers Split Biens immobiliers Zadar Biens immobiliers Rijeka Biens immobiliers Osijek Biens immobiliers Dubrovnik Biens immobiliers Pula Biens immobiliers Šibenik Biens immobiliers Varaždin Biens immobiliers Karlovac Biens immobiliers Makarska Biens immobiliers TrogirCatégories populaires
Appartements à vendre Maisons à vendre Villas à vendre Appartements à vendre Appartements à louer Maisons à louer Villas à louer Appartements à louer Terrains à bâtir Terrains agricoles Locaux commerciaux Biens de luxeCatégories par lieu
Appartements Zagreb Appartements Split Appartements Rijeka Maisons Zadar Villas Hvar Appartements Rovinj Appartements Pula Maisons Zagreb Maisons Split Maisons Dubrovnik Maisons Rijeka Villas BračRecherche avancée
Vente appartements Zagreb Vente biens immobiliers Zagreb Vente biens immobiliers Split Vente biens immobiliers Istrie Vente biens immobiliers Dubrovnik Vente maisons Zagreb Location appartements Zagreb Vente appartements Split Vente maisons Split Vente appartements Split Location appartements Split Vente appartements ZadarLocalites populaires
Biens immobiliers Zagreb Biens immobiliers Split Biens immobiliers Zadar Biens immobiliers RijekaCatégories populaires
Appartements à vendre Maisons à vendre Villas à vendre Appartements à vendreCatégories par lieu
Appartements Zagreb Appartements Split Appartements Rijeka Maisons ZadarRecherche avancée
Vente appartements Zagreb Vente biens immobiliers Zagreb Vente biens immobiliers Split Vente biens immobiliers IstrieQuestions fréquemment posées
Quels sont les avantages d'acheter un bien dans une nouvelle construction ?
Y a-t-il une garantie sur les biens en nouvelle construction ?
Puis-je acheter une nouvelle construction en cours de construction ?
En quoi l'achat d'une nouvelle construction diffère-t-il de celui d'un bien ancien ?
Que comprend le prix d'une nouvelle construction ?
Les nouvelles constructions peuvent-elles être achetées par prêt immobilier ?
Quand puis-je emménager dans un appartement acheté en nouvelle construction ?
Qu'est-ce qu'un permis d'utilisation et pourquoi est-il important ?
Quel est le rôle de l'agence lors de l'achat d'une nouvelle construction ?
- conseils dans le choix du projet,
- accès au devis et aux spécifications techniques,
- aide à la négociation et à la réservation,
- vérification juridique de la documentation,
- communication avec l'investisseur, la banque et le notaire.













