


Zadar, Sukošan - Trosoban stan u novogradnji, 87 m2
Zadarska, Sukošan, Sukošan
399,000 €
Ključne informacije
Opis nekretnine
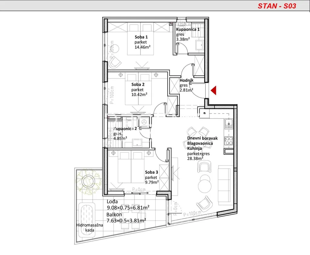
Posredujemo pri prodaji trosobnog stana koji se nalazi na izvrsnoj lokaciji u Sukošanu, nedaleko od Zadra. Jedinstvena lokacija u prvome redu uz more čini ovaj stan idealnom investicijom za buduće ulagače u turističku djelatnost.Stan se nalazi na prvom katu zgrade u izgradnji, a sastoji se od hodnika ukupne netto površine 2,81m2, dvije kupaonice površine 3,38m2 i 4,85m2, open space prostora površine 28,38m2 koji obuhvaća dnevni boravak, kuhinju i blagovaonicu, tri spavaće sobe površina 14,46m2, 10,42m2 i 9,79m2, loggie površine 6,81m2 i balkona površine 3,81m2.Stan je opremljen klima uređajem i podnim grijanjem u kupaonici.Uz stan dolazi i vanjsko parkirno mjesto koje je uključeno u cijenu.***Projekt obuhvaća tri stambene zgrade s petnaest stanova od kojih svakome pripada jedno parkirno mjesto.Svaka se zgrada sastoji od tri etaže – prizemlja, prvog, drugog kata i krovne terase koja pripada penthouseu. Prva i druga zgrada sadrže šest stambenih jedinica različitih kvadratura i sobnosti, dok se treća zgrada sastoji od tri stana veće kvadrature. Stanovi u prizemlju sadrže i bazen te prostranu terasu u dvorišu. Prva zgrada nudi parkirno mjesto u garaži uz dodatno plaćanje, dok preostale dvije sadrže vanjsko parkirno mjesto koje je uključeno u cijenu.Luksuzni penthousei koji nude potpunu privatnost zbog unutarnjeg stubišta, krovne terase na drugoj etaži stana i prekrasnog otvorenog pogleda na more te prostrani stanovi u prizemlju koji nude vrt i bazen izuzetna su prilika budućim ulagačima u turističku djelatnost.Sve su stambene jedinice opremljene visokokvalitetnim materijalima, podnim grijanjem i klimatizacijom, a lokacija u neposrednoj blizini prekrasnih plaža i svih sadržaja potrebnih za svakodnevni život prilika su za miran i praktičan život tijekom cijele godine.***
Detalji o nekretnini
Tlocrt

Online kreditni kalkulator
Izračunajte svoju mjesečnu ratu kredita.
Kreditni kalkulator
Mjesečna rata
Ukupni iznos kredita
Energetski razred
Globalni energetski indeks
Nešto što bi vam se moglo svidjeti
Vidi sveIstražite još lokacija
Povezujemo vas s provjerenim nekretninama prije svih
Popularne pretrage
Popularne lokacije
Nekretnine Zagreb Nekretnine Split Nekretnine Zadar Nekretnine Rijeka Nekretnine Osijek Nekretnine Dubrovnik Nekretnine Pula Nekretnine Šibenik Nekretnine Varaždin Nekretnine Karlovac Nekretnine Makarska Nekretnine TrogirPopularne kategorije
Stanovi na prodaju Kuće na prodaju Vile na prodaju Apartmani na prodaju Stanovi za najam Kuće za najam Vile za najam Apartmani za najam Građevinska zemljišta Poljoprivredna zemljišta Poslovni prostori Luksuzne nekretnineKategorije po lokacijama
Stanovi Zagreb Stanovi Split Stanovi Rijeka Kuće Zadar Vile Hvar Apartmani Rovinj Stanovi Pula Kuće Zagreb Kuće Split Kuće Dubrovnik Kuće Rijeka Vile BračProširena pretraga
Stanovi prodaja Zagreb Prodaja nekretnina Zagreb Prodaja nekretnina Split Prodaja nekretnina Istra Prodaja nekretnina Dubrovnik Kuće prodaja Zagreb Stanovi najam Zagreb Stanovi prodaja Split Kuće prodaja Split Apartmani prodaja Split Stanovi najam Split Apartmani prodaja ZadarPopularne lokacije
Nekretnine Zagreb Nekretnine Split Nekretnine Zadar Nekretnine RijekaPopularne kategorije
Stanovi na prodaju Kuće na prodaju Vile na prodaju Apartmani na prodajuKategorije po lokacijama
Stanovi Zagreb Stanovi Split Stanovi Rijeka Kuće ZadarProširena pretraga
Stanovi prodaja Zagreb Prodaja nekretnina Zagreb Prodaja nekretnina Split Prodaja nekretnina IstraČesto postavljena pitanja
Koji su prvi koraci pri kupnji nekretnine u Hrvatskoj?
Koliki su svi troškovi vezani uz kupnju nekretnine?
Uz cijenu same nekretnine, kupac snosi i dodatne troškove kao što su:
- Porez na promet nekretnina – 3% od tržišne vrijednosti (osim za novogradnju s PDV-om)
- Agencijska provizija – obično 2–3% + PDV (uključuje pravnu provjeru i savjetovanje)
- Javnobilježnički troškovi – ovjera potpisa i izrada solemnizacije ugovora
- Troškovi upisa u zemljišne knjige
- Bankovni troškovi (ako kupujete putem kredita)
Regent će vam unaprijed pripremiti detaljnu procjenu svih troškova kako biste mogli planirati budžet bez iznenađenja.



























