


Split, Plokite - Poslovni prostor
Splitsko-dalmatinska, Split, Plokite
185,000 €
Ključne informacije
Opis nekretnine
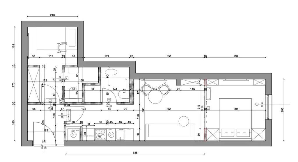
Na frekventnoj lokaciji na Plokitama nalazi se poslovni prostor površine 40 m², koji je trenutačno u fazi potpunog preuređenja, osmišljen tako da zadovolji potrebe modernog poslovanja uz dodatnu vrijednost stambene jedinice. Prostor je koncipiran vrlo promišljeno, s jasno odvojenim uredskim dijelom i zasebnim apartmanom, što omogućuje različite modele korištenja.
Uredski dio oblikovan je kao funkcionalan i ugodan radni prostor, s kvalitetnom organizacijom i naglaskom na prirodno svjetlo, ventilaciju i suvremene instalacije. Takav raspored čini prostor prikladnim za uredske djelatnosti, uslužne aktivnosti, tihi studio ili slične namjene koje zahtijevaju uredno i profesionalno okruženje.
Odvojeni apartman predstavlja dodatnu vrijednost nekretnine te je pogodan za kratkoročni ili dugoročni najam, smještaj zaposlenika ili kombinaciju poslovnog i privatnog korištenja. Jasna odvojenost od uredskog dijela osigurava privatnost i fleksibilnost, što ovaj prostor čini posebno zanimljivim i investicijski atraktivnim.
Plokite su tražen gradski kvart s odličnom povezanošću i blizinom centra Splita, javnog prijevoza i svih važnih sadržaja. Upravo ta lokacija, uz promišljeno uređenje i višenamjensku funkciju prostora, čini ovu nekretninu vrijednom pažnje.
Za dodatne informacije o fazi uređenja, mogućnostima korištenja i dogovor razgledavanja, slobodno nas kontaktirajte.
Detalji o nekretnini
Tlocrt

Pronađite nekretninu na karti
Online kreditni kalkulator
Izračunajte svoju mjesečnu ratu kredita.
Kreditni kalkulator
Mjesečna rata
Ukupni iznos kredita
Energetski razred
Globalni energetski indeks
Nešto što bi vam se moglo svidjeti
Vidi sveIstražite još lokacija
Povezujemo vas s provjerenim nekretninama prije svih
Popularne pretrage
Popularne lokacije
Nekretnine Zagreb Nekretnine Split Nekretnine Zadar Nekretnine Rijeka Nekretnine Osijek Nekretnine Dubrovnik Nekretnine Pula Nekretnine Šibenik Nekretnine Varaždin Nekretnine Karlovac Nekretnine Makarska Nekretnine TrogirPopularne kategorije
Stanovi na prodaju Kuće na prodaju Vile na prodaju Apartmani na prodaju Stanovi za najam Kuće za najam Vile za najam Apartmani za najam Građevinska zemljišta Poljoprivredna zemljišta Poslovni prostori Luksuzne nekretnineKategorije po lokacijama
Stanovi Zagreb Stanovi Split Stanovi Rijeka Kuće Zadar Vile Hvar Apartmani Rovinj Stanovi Pula Kuće Zagreb Kuće Split Kuće Dubrovnik Kuće Rijeka Vile BračProširena pretraga
Stanovi prodaja Zagreb Prodaja nekretnina Zagreb Prodaja nekretnina Split Prodaja nekretnina Istra Prodaja nekretnina Dubrovnik Kuće prodaja Zagreb Stanovi najam Zagreb Stanovi prodaja Split Kuće prodaja Split Apartmani prodaja Split Stanovi najam Split Apartmani prodaja ZadarPopularne lokacije
Nekretnine Zagreb Nekretnine Split Nekretnine Zadar Nekretnine RijekaPopularne kategorije
Stanovi na prodaju Kuće na prodaju Vile na prodaju Apartmani na prodajuKategorije po lokacijama
Stanovi Zagreb Stanovi Split Stanovi Rijeka Kuće ZadarProširena pretraga
Stanovi prodaja Zagreb Prodaja nekretnina Zagreb Prodaja nekretnina Split Prodaja nekretnina IstraČesto postavljena pitanja
Koji su prvi koraci pri kupnji nekretnine u Hrvatskoj?
Koliki su svi troškovi vezani uz kupnju nekretnine?
Uz cijenu same nekretnine, kupac snosi i dodatne troškove kao što su:
- Porez na promet nekretnina – 3% od tržišne vrijednosti (osim za novogradnju s PDV-om)
- Agencijska provizija – obično 2–3% + PDV (uključuje pravnu provjeru i savjetovanje)
- Javnobilježnički troškovi – ovjera potpisa i izrada solemnizacije ugovora
- Troškovi upisa u zemljišne knjige
- Bankovni troškovi (ako kupujete putem kredita)
Regent će vam unaprijed pripremiti detaljnu procjenu svih troškova kako biste mogli planirati budžet bez iznenađenja.








































































