


Zagreb, Srebrnjak - luksuzan četverosoban stan
Grad Zagreb, Maksimir, Srebrnjak
790,000 €
Ključne informacije
Opis nekretnine
Dvoetažni stan nalazi se na atraktivnoj lokaciji na Srebrnjaku, u mirnom i ugodnom okruženju nadomak centra grada. Prostire se kroz prizemlje i prvi kat zgrade te spaja udobnost obiteljskog života s prednostima moderne novogradnje. Odličan izbor za one koji traže kvalitetan, prostran i funkcionalan dom u jednoj od najpoželjnijih zagrebačkih četvrti.
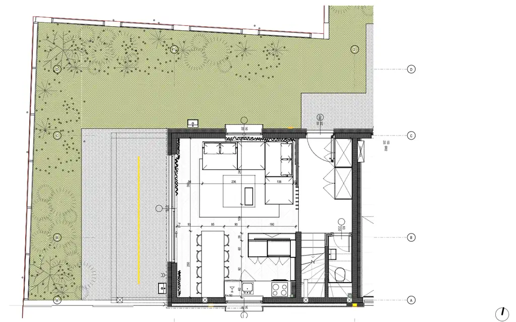
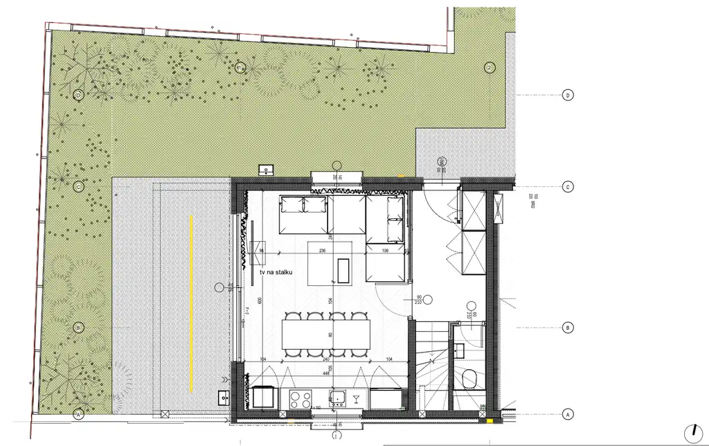
Ukupne neto površine 127 m², stan obuhvaća dnevni dio u prizemlju i spavaći dio na katu.
Prizemlje se sastoji od predsoblja, gostinjskog toaleta, dnevnog boravka s kuhinjom i blagovaonicom te izlaza na terasu i vrt površine 109 m².
Na katu se nalaze tri spavaće sobe i dvije kupaonice, od kojih je jedna povezana s glavnom spavaćom sobom, te dodatna terasa.
Uz stan dolaze dvije garaže površine 31 m² s izravnim pristupom vrtu i ulazu što prostoru daje karakter male urbane kuće unutar većeg objekta.
Zgrada je projektirana u energetski razredu A+ s armiranobetonskom konstrukcijom i vrhunskom opremom.
Vanjska stolarija je Schüco s lameliranim staklima radi bolje toplinske i zvučne izolacije, a žaluzine su električne s mogućnošću upravljanja putem mobilnih uređaja.
Stan ima stropno i podno grijanje, Daikin dizalice topline, a podovi kombiniraju hrastov parket i pločice 1. klase.
U neposrednoj blizini nalazi se autobusna stanica s linijom prema Kvaternikovom trgu i Kaptolu, dok su svi važni sadržaji udaljeni svega nekoliko minuta.
Za više informacija ili dogovor oko razgledavanja, slobodno nas kontaktirajte.
Detalji o nekretnini
Tlocrt


Pronađite nekretninu na karti
Online kreditni kalkulator
Izračunajte svoju mjesečnu ratu kredita.
Kreditni kalkulator
Mjesečna rata
Ukupni iznos kredita
Energetski razred
Globalni energetski indeks
Nešto što bi vam se moglo svidjeti
Vidi sveIstražite još lokacija
Povezujemo vas s provjerenim nekretninama prije svih
Popularne pretrage
Popularne lokacije
Nekretnine Zagreb Nekretnine Split Nekretnine Zadar Nekretnine Rijeka Nekretnine Osijek Nekretnine Dubrovnik Nekretnine Pula Nekretnine Šibenik Nekretnine Varaždin Nekretnine Karlovac Nekretnine Makarska Nekretnine TrogirPopularne kategorije
Stanovi na prodaju Kuće na prodaju Vile na prodaju Apartmani na prodaju Stanovi za najam Kuće za najam Vile za najam Apartmani za najam Građevinska zemljišta Poljoprivredna zemljišta Poslovni prostori Luksuzne nekretnineKategorije po lokacijama
Stanovi Zagreb Stanovi Split Stanovi Rijeka Kuće Zadar Vile Hvar Apartmani Rovinj Stanovi Pula Kuće Zagreb Kuće Split Kuće Dubrovnik Kuće Rijeka Vile BračProširena pretraga
Stanovi prodaja Zagreb Prodaja nekretnina Zagreb Prodaja nekretnina Split Prodaja nekretnina Istra Prodaja nekretnina Dubrovnik Kuće prodaja Zagreb Stanovi najam Zagreb Stanovi prodaja Split Kuće prodaja Split Apartmani prodaja Split Stanovi najam Split Apartmani prodaja ZadarPopularne lokacije
Nekretnine Zagreb Nekretnine Split Nekretnine Zadar Nekretnine RijekaPopularne kategorije
Stanovi na prodaju Kuće na prodaju Vile na prodaju Apartmani na prodajuKategorije po lokacijama
Stanovi Zagreb Stanovi Split Stanovi Rijeka Kuće ZadarProširena pretraga
Stanovi prodaja Zagreb Prodaja nekretnina Zagreb Prodaja nekretnina Split Prodaja nekretnina IstraČesto postavljena pitanja
Koji su prvi koraci pri kupnji nekretnine u Hrvatskoj?
Koliki su svi troškovi vezani uz kupnju nekretnine?
Uz cijenu same nekretnine, kupac snosi i dodatne troškove kao što su:
- Porez na promet nekretnina – 3% od tržišne vrijednosti (osim za novogradnju s PDV-om)
- Agencijska provizija – obično 2–3% + PDV (uključuje pravnu provjeru i savjetovanje)
- Javnobilježnički troškovi – ovjera potpisa i izrada solemnizacije ugovora
- Troškovi upisa u zemljišne knjige
- Bankovni troškovi (ako kupujete putem kredita)
Regent će vam unaprijed pripremiti detaljnu procjenu svih troškova kako biste mogli planirati budžet bez iznenađenja.





















































