


Zagreb, Kvaternikov Trg – Ekskluzivan četverosoban stan, novogradnja
Grad Zagreb, Maksimir, Maksimir
Na upit
Ključne informacije
Opis nekretnine
Prodaje se vrhunski četverosoban stan u ekskluzivnoj novogradnji na atraktivnoj lokaciji Kušlanova / Škrlčeva, idealan za kupce koji traže moderan obiteljski stan s naglaskom na kvalitetu, funkcionalnost i dugoročnu vrijednost.
Stan se nalazi na prvom katu manje urbane zgrade s ukupno tri kata i svega 8 stanova, što osigurava mirno i ugodno stanovanje. Projekt je osmišljen kao spoj suvremene arhitekture i visoke kvalitete izvedbe. Početak gradnje planiran je za ljeto 2026. godine, a završetak krajem 2027. godine.
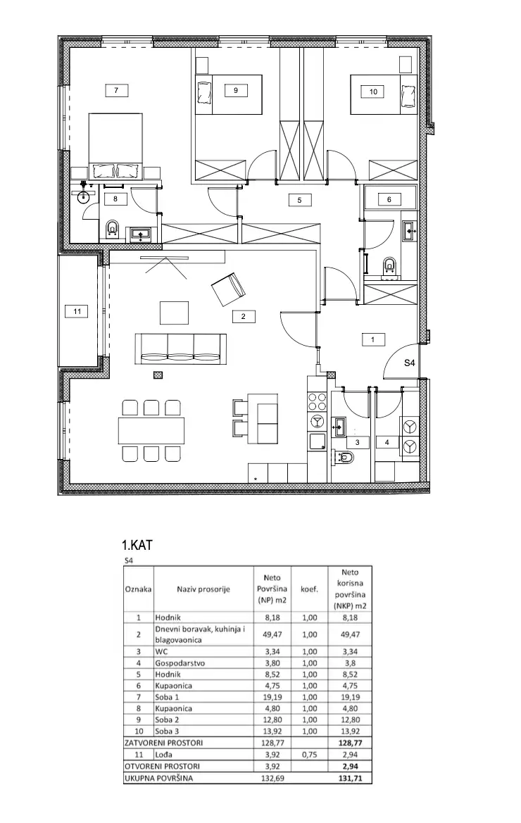
Ukupna površina stana iznosi 132,69 m², dok neto korisna površina (NKP) iznosi 131,71 m². Zatvoreni stambeni dio obuhvaća 128,77 m², uz dodatnu lođu površine 3,92 m².
Stan se sastoji od ulaznog hodnika, prostranog dnevnog boravka s kuhinjom i blagovaonicom (49,47 m²), tri spavaće sobe, dvije kupaonice, zasebnog WC-a, dodatnog hodnika te gospodarstva. Raspored je izuzetno funkcionalan i prilagođen suvremenom obiteljskom životu.
Oprema i standard:
dizalica topline (grijanje i hlađenje)
podno grijanje u svim prostorijama
smart home sustav (upravljanje grijanjem, rasvjetom i roletama)
vrhunska keramika velikog formata
kvalitetan višeslojni parket
aluminijska stolarija s troslojnim staklom
električne rolete i komarnici
protuprovalna i protupožarna ulazna vrata
videoportafon
priprema za punjenje električnih vozila
klimatizacija putem sustava dizalice topline
Uz stan dolazi garažno parkirno mjesto obračunske površine 6,80 m² te spremište površine 1,50 m².
Lokacija nudi odličnu povezanost s centrom grada te blizinu svih sadržaja potrebnih za svakodnevni život – škole, vrtići, trgovine, javni prijevoz i poslovne zone nalaze se u neposrednoj blizini.
Ova nekretnina predstavlja idealan spoj moderne gradnje, vrhunske opreme i tražene lokacije, te je izvrsna prilika za dugoročnu investiciju ili kvalitetan obiteljski život.
Za više informacija i rezervaciju stana, slobodno nas kontaktirajte.
Detalji o nekretnini
Tlocrt

Pronađite nekretninu na karti
Online kreditni kalkulator
Izračunajte svoju mjesečnu ratu kredita.
Kreditni kalkulator
Mjesečna rata
Ukupni iznos kredita
Energetski razred
Globalni energetski indeks
Nešto što bi vam se moglo svidjeti
Vidi sveIstražite još lokacija
Povezujemo vas s provjerenim nekretninama prije svih
Popularne pretrage
Popularne lokacije
Nekretnine Zagreb Nekretnine Split Nekretnine Zadar Nekretnine Rijeka Nekretnine Osijek Nekretnine Dubrovnik Nekretnine Pula Nekretnine Šibenik Nekretnine Varaždin Nekretnine Karlovac Nekretnine Makarska Nekretnine TrogirPopularne kategorije
Stanovi na prodaju Kuće na prodaju Vile na prodaju Apartmani na prodaju Stanovi za najam Kuće za najam Vile za najam Apartmani za najam Građevinska zemljišta Poljoprivredna zemljišta Poslovni prostori Luksuzne nekretnineKategorije po lokacijama
Stanovi Zagreb Stanovi Split Stanovi Rijeka Kuće Zadar Vile Hvar Apartmani Rovinj Stanovi Pula Kuće Zagreb Kuće Split Kuće Dubrovnik Kuće Rijeka Vile BračProširena pretraga
Stanovi prodaja Zagreb Prodaja nekretnina Zagreb Prodaja nekretnina Split Prodaja nekretnina Istra Prodaja nekretnina Dubrovnik Kuće prodaja Zagreb Stanovi najam Zagreb Stanovi prodaja Split Kuće prodaja Split Apartmani prodaja Split Stanovi najam Split Apartmani prodaja ZadarPopularne lokacije
Nekretnine Zagreb Nekretnine Split Nekretnine Zadar Nekretnine RijekaPopularne kategorije
Stanovi na prodaju Kuće na prodaju Vile na prodaju Apartmani na prodajuKategorije po lokacijama
Stanovi Zagreb Stanovi Split Stanovi Rijeka Kuće ZadarProširena pretraga
Stanovi prodaja Zagreb Prodaja nekretnina Zagreb Prodaja nekretnina Split Prodaja nekretnina IstraČesto postavljena pitanja
Koji su prvi koraci pri kupnji nekretnine u Hrvatskoj?
Koliki su svi troškovi vezani uz kupnju nekretnine?
Uz cijenu same nekretnine, kupac snosi i dodatne troškove kao što su:
- Porez na promet nekretnina – 3% od tržišne vrijednosti (osim za novogradnju s PDV-om)
- Agencijska provizija – obično 2–3% + PDV (uključuje pravnu provjeru i savjetovanje)
- Javnobilježnički troškovi – ovjera potpisa i izrada solemnizacije ugovora
- Troškovi upisa u zemljišne knjige
- Bankovni troškovi (ako kupujete putem kredita)
Regent će vam unaprijed pripremiti detaljnu procjenu svih troškova kako biste mogli planirati budžet bez iznenađenja.













