
Podstrana, Strožanac - Jednosoban stan sa loggiom
Splitsko-dalmatinska, Podstrana, Strožanac
165,920 €
Ključne informacije
Opis nekretnine
Stan se nalazi u prizemlju projekta Strožanac Residence, moderne novogradnje u mirnom rezidencijalnom dijelu Strožanca.
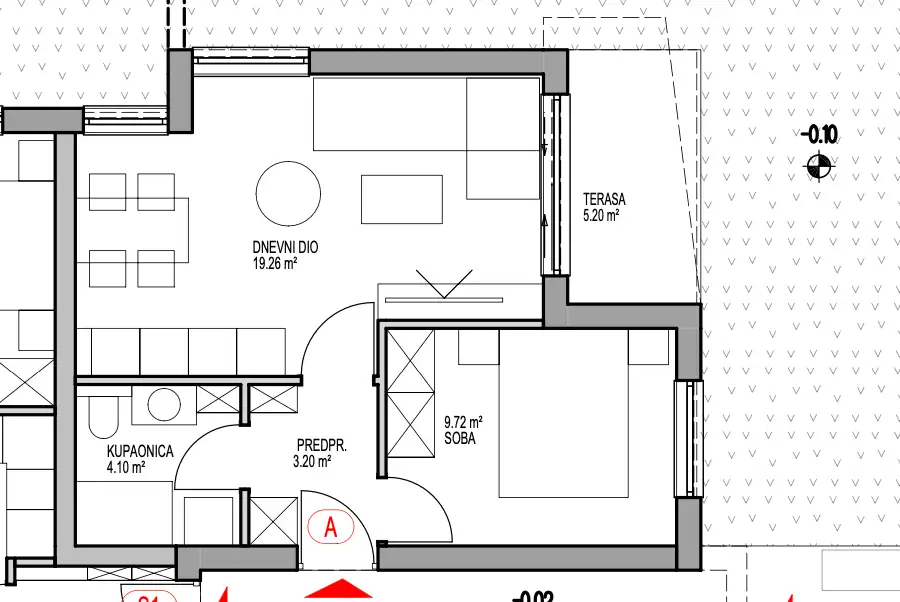
Stan se sastoji od: predprostora 3,20 m², dnevnog dijela 19,26 m², kupaonice 4,10 m², spavaće sobe 9,72 m² te terase od 5,20 m², što ukupno iznosi 41,48 m² neto korisne površine.
Stan je osmišljen za maksimalnu iskoristivost prostora, uz suvremene standarde gradnje i kvalitetne materijale koji osiguravaju dugotrajnost i udobnost.
Garažno parkirno mjesto iznosi 25.000 €.
Planirani završetak radova predviđa se za kraj ljeta 2027. godine.
Strožanac predstavlja idealnu lokaciju za ugodan i kvalitetan život, gdje se spajaju mirno rezidencijalno okruženje i blizina mora. Područje je odlično povezano sa Splitom i glavnim prometnicama, što omogućava jednostavan pristup poslovnim i kulturnim sadržajima grada. Istodobno, u neposrednoj blizini nalaze se škole, trgovine i rekreativne zone, što osigurava sve preduvjete za funkcionalan i moderan život.
Za više informacija, kao i dogovor o razgledavanju, slobodno nas kontaktirajte!
Detalji o nekretnini
Tlocrt

Pronađite nekretninu na karti
Online kreditni kalkulator
Izračunajte svoju mjesečnu ratu kredita.
Kreditni kalkulator
Mjesečna rata
Ukupni iznos kredita
Energetski razred
Globalni energetski indeks
Nešto što bi vam se moglo svidjeti
Vidi sveIstražite još lokacija
Povezujemo vas s provjerenim nekretninama prije svih
Popularne pretrage
Popularne lokacije
Nekretnine Zagreb Nekretnine Split Nekretnine Zadar Nekretnine Rijeka Nekretnine Osijek Nekretnine Dubrovnik Nekretnine Pula Nekretnine Šibenik Nekretnine Varaždin Nekretnine Karlovac Nekretnine Makarska Nekretnine TrogirPopularne kategorije
Stanovi na prodaju Kuće na prodaju Vile na prodaju Apartmani na prodaju Stanovi za najam Kuće za najam Vile za najam Apartmani za najam Građevinska zemljišta Poljoprivredna zemljišta Poslovni prostori Luksuzne nekretnineKategorije po lokacijama
Stanovi Zagreb Stanovi Split Stanovi Rijeka Kuće Zadar Vile Hvar Apartmani Rovinj Stanovi Pula Kuće Zagreb Kuće Split Kuće Dubrovnik Kuće Rijeka Vile BračProširena pretraga
Stanovi prodaja Zagreb Prodaja nekretnina Zagreb Prodaja nekretnina Split Prodaja nekretnina Istra Prodaja nekretnina Dubrovnik Kuće prodaja Zagreb Stanovi najam Zagreb Stanovi prodaja Split Kuće prodaja Split Apartmani prodaja Split Stanovi najam Split Apartmani prodaja ZadarPopularne lokacije
Nekretnine Zagreb Nekretnine Split Nekretnine Zadar Nekretnine RijekaPopularne kategorije
Stanovi na prodaju Kuće na prodaju Vile na prodaju Apartmani na prodajuKategorije po lokacijama
Stanovi Zagreb Stanovi Split Stanovi Rijeka Kuće ZadarProširena pretraga
Stanovi prodaja Zagreb Prodaja nekretnina Zagreb Prodaja nekretnina Split Prodaja nekretnina IstraČesto postavljena pitanja
Koji su prvi koraci pri kupnji nekretnine u Hrvatskoj?
Koliki su svi troškovi vezani uz kupnju nekretnine?
Uz cijenu same nekretnine, kupac snosi i dodatne troškove kao što su:
- Porez na promet nekretnina – 3% od tržišne vrijednosti (osim za novogradnju s PDV-om)
- Agencijska provizija – obično 2–3% + PDV (uključuje pravnu provjeru i savjetovanje)
- Javnobilježnički troškovi – ovjera potpisa i izrada solemnizacije ugovora
- Troškovi upisa u zemljišne knjige
- Bankovni troškovi (ako kupujete putem kredita)
Regent će vam unaprijed pripremiti detaljnu procjenu svih troškova kako biste mogli planirati budžet bez iznenađenja.



































































































