
Makarska, Zelenka – nowoczesna nowa zabudowa w pobliżu centrum i plaży
Ekskluzywne nowe budownictwo w doskonałej lokalizacjiO PROJEKCIE
W zachodniej części Makarskiej budowany jest nowoczesny budynek mieszkalny z łącznie 28 mieszkaniami. Projekt przeznaczony jest dla rodzin, par i inwestorów poszukujących wysokiej jakości nowej budowy w odległości spaceru od morza i centrum, z otwartym widokiem i dużą ilością naturalnego światła.
CENA WYJŚCIOWA
ZAKOŃCZENIE PROJEKTU
PLAN PŁATNOŚCI


Solidna konstrukcja z 10-letnią gwarancją
Projekt obejmuje jedno podziemne piętro z miejscami parkingowymi oraz cztery naziemne piętra połączone windą. Budowa jest prowadzona z użyciem wysokiej jakości materiałów, a budynek będzie wyposażony w ogrzewanie podłogowe, stolarkę PCV, elektryczne rolety, drzwi antywłamaniowe i domofon. Wszystkie mieszkania są klimatyzowane, a klienci mogą wybierać materiały wykończeniowe, takie jak płytki ceramiczne, parkiet i wyposażenie łazienkowe, według własnych upodobań. Inwestor udziela gwarancji na budynek na okres 10 lat.
W ofercie znajdują się mieszkania o różnych powierzchniach i układach, o orientacji południowej, z balkonami, a niektóre mieszkania mają również ogrody. Zakup zewnętrznego miejsca parkingowego jest obowiązkowy, a wszystkie warunki zakupu podlegają negocjacjom.
Planowane zakończenie budowy przewidziane jest na wiosnę 2027 roku. Płatność jest możliwa etapami budowy.

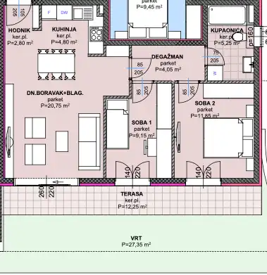
Plan piętra









Wszystkie jednostki w nowym budynku
| ID | Jednostka | Powierzchnia | Piętro | Pokoje | Cena | Plan piętra | Status |
|---|---|---|---|---|---|---|---|
| RE556248 | Mieszkanie | 119.72m2 | 1 | 4 | 419,000 € | TAK | Dostępne |
| RE828653 | Mieszkanie | 67.51m2 | 0 | 3 | 243,000 € | TAK | Dostępne |
| RE606341 | Mieszkanie | 74.61m2 | 2 | 3 | 283,500 € | TAK | Dostępne |
| RE775265 | Mieszkanie | 75.93m2 | 2 | 3 | 288,550 € | TAK | Dostępne |
| RE869477 | Mieszkanie | 74.61m2 | 1 | 3 | 281,000 € | TAK | Dostępne |
| RE735233 | Mieszkanie | 75.93m2 | 1 | 3 | 280,950 € | TAK | Dostępne |
| RE298933 | Mieszkanie | 64.09m2 | 0 | 3 | 230,700 € | TAK | Dostępne |
| RE625318 | Mieszkanie | 47.40m2 | 2 | 2 | 180,000 € | TAK | Dostępne |
| RE804207 | Mieszkanie | 0.00m2 | 0 | 3 | 257,800 € | TAK | Dostępne |
Spokojna strefa miejska blisko centrum i plaż.
Budynek znajduje się w spokojnej i zadbanej lokalizacji, zaledwie 500 metrów od morza i centrum miasta. W bezpośrednim sąsiedztwie znajdują się sklepy, restauracje, szkoła i wszystkie udogodnienia potrzebne do codziennego życia.
Makarska słynie z przyjemnego klimatu z ponad 300 słonecznymi dniami w roku oraz doskonałym połączeniem komunikacyjnym z autostradą, portem promowym i lotniskiem.
PLAN PŁATNOŚCI
50%
Zadatek25%
W trakcie budowy25%
Przed przekazaniemŁączymy Cię ze zweryfikowanymi nieruchomościami, zanim ktokolwiek inny
Popularne wyszukiwania
Popularne lokalizacje
Nieruchomości Zagrzeb Nieruchomości Split Nieruchomości Zadar Nieruchomości Rijeka Nieruchomości Osijek Nieruchomości Dubrownik Nieruchomości Pula Nieruchomości Šibenik Nieruchomości Varaždin Nieruchomości Karlovac Nieruchomości Makarska Nieruchomości TrogirPopularne kategorie
Mieszkania na sprzedaż Domy na sprzedaż Wille na sprzedaż Jednostki apartamentowe na sprzedaż Mieszkania do wynajęcia Domy do wynajęcia Wille do wynajęcia Jednostki apartamentowe do wynajęcia Działki budowlane Grunty rolne Lokale usługowe Luksusowe nieruchomościKategorie według lokalizacji
Mieszkania Zagrzeb Mieszkania Split Mieszkania Rijeka Domy Zadar Wille Hvar Jednostki apartamentowe Rovinj Mieszkania Pula Domy Zagrzeb Domy Split Domy Dubrownik Domy Rijeka Wille BračRozszerzone wyszukiwanie
Mieszkania sprzedaż Zagrzeb Nieruchomości sprzedaż Zagrzeb Nieruchomości sprzedaż Split Nieruchomości sprzedaż Istria Nieruchomości sprzedaż Dubrownik Domy sprzedaż Zagrzeb Mieszkania wynajem Zagrzeb Mieszkania sprzedaż Split Domy sprzedaż Split Jednostki apartamentowe sprzedaż Split Mieszkania wynajem Split Jednostki apartamentowe sprzedaż ZadarPopularne lokalizacje
Nieruchomości Zagrzeb Nieruchomości Split Nieruchomości Zadar Nieruchomości RijekaPopularne kategorie
Mieszkania na sprzedaż Domy na sprzedaż Wille na sprzedaż Jednostki apartamentowe na sprzedażKategorie według lokalizacji
Mieszkania Zagrzeb Mieszkania Split Mieszkania Rijeka Domy ZadarRozszerzone wyszukiwanie
Mieszkania sprzedaż Zagrzeb Nieruchomości sprzedaż Zagrzeb Nieruchomości sprzedaż Split Nieruchomości sprzedaż IstriaCzęsto zadawane pytania
Jakie są zalety zakupu nieruchomości z nowego budownictwa?
Czy jest gwarancja na nieruchomości z nowego budownictwa?
Czy mogę kupić nieruchomość z nowego budownictwa, która jest jeszcze w budowie?
Czym różni się kupno nowego budownictwa od kupna starszej nieruchomości?
Co obejmuje cena nowego budownictwa?
Czy nowe budownictwo można kupić na kredyt mieszkaniowy?
Kiedy mogę wprowadzić się do mieszkania zakupionego w nowym budynku?
Czym jest pozwolenie na użytkowanie i dlaczego jest ważne?
Jaka jest rola agencji przy zakupie nowego budownictwa?
- doradztwo w zakresie wyboru projektu,
- wgląd w kosztorys i specyfikację techniczną,
- pomoc w negocjacjach i rezerwacjach,
- kontrolę prawną dokumentacji,
- komunikację z inwestorem, bankiem i notariuszem.









