
Zagabria, Lanište – moderno spazio uffici in edificio commerciale
Città di Zagabria, Novi Zagreb - Zapad, Lanište
2,465 €
Informazioni chiave
Descrizione
Lo spazio ufficio si trova al 1° piano di un nuovo edificio per uffici vicino a Jadranska avenija, nel cuore della zona commerciale di Lanište.
L'edificio è progettato in modo moderno e dotato di impianti moderni, e lo spazio è ideale per le aziende che cercano un ufficio rappresentativo con un'eccellente accessibilità ai trasporti.
La superficie netta totale dell'ufficio è di 145,20 m², ed è composto da un ufficio principale, un angolo cottura, servizi igienici e un ripostiglio.
La disposizione è funzionale e consente l'adattamento al concetto di open space o alle unità di lavoro separate.
Lo spazio è ricco di luce naturale e ha una piacevole atmosfera di lavoro.
L'edificio si trova vicino a Jadranska avenija, con un rapido accesso all'autostrada e al centro della città.
Nelle immediate vicinanze si trovano Arena Centar, Kaufland, strutture sportive e commerciali.
L'ambiente è vivace, ma ordinato e tranquillo, il che contribuisce ulteriormente all'impressione professionale dello spazio.
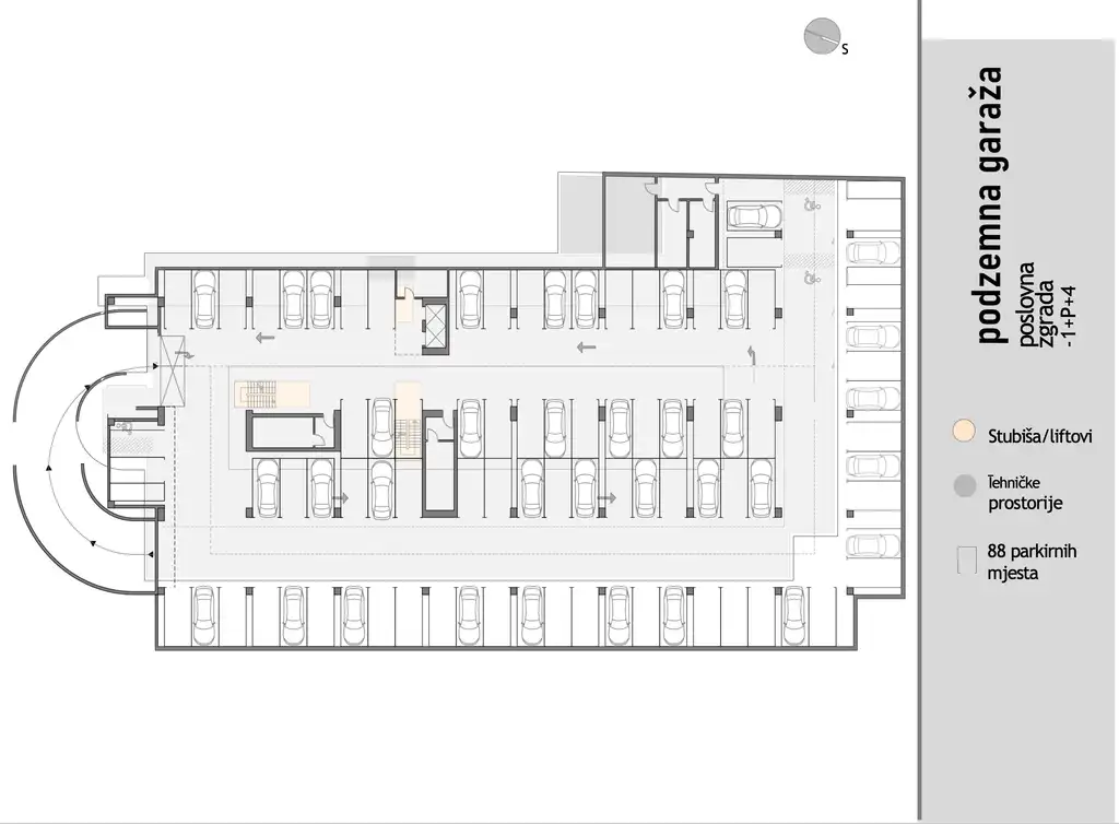
L'edificio dispone di un ascensore che collega tutti i piani, compreso il garage, videosorveglianza e 88 posti auto all'interno dell'edificio.
L'ufficio può essere ulteriormente adattato alle esigenze dell'affittuario, e lo spazio è adatto per attività IT, finanziarie, di consulenza e altre attività.
Per ulteriori informazioni, non esitate a contattarci.
Dettagli dell'immobile
Planimetria





Trova sulla mappa
Calcolatore di prestito online
Calcola la tua rata mensile del prestito.
Calcolatore di prestito
Rata mensile
Importo totale del prestito
Classe energetica
Indice di Prestazione Energetica Globale
Potrebbe piacerti anche
Vedi tuttoEsplora altre località
Ti mettiamo in contatto con immobili verificati prima di chiunque altro
Ricerche popolari
Località popolari
Immobili Zagabria Immobili Spalato Immobili Zara Immobili Fiume Immobili Osijek Immobili Dubrovnik Immobili Pola Immobili Sebenico Immobili Varaždin Immobili Karlovac Immobili Makarska Immobili TraùCategorie popolari
Appartamenti in vendita Case in vendita Ville in vendita Unità abitative in vendita Appartamenti in affitto Case in affitto Ville in affitto Unità abitative in affitto Terreni edificabili Terreni agricoli Locali commerciali Immobili di lussoCategorie per località
Appartamenti Zagabria Appartamenti Spalato Appartamenti Fiume Case Zara Ville Hvar Unità abitative Rovigno Appartamenti Pola Case Zagabria Case Spalato Case Dubrovnik Case Fiume Ville BračRicerca avanzata
Vendita appartamenti Zagabria Vendita immobili Zagabria Vendita immobili Spalato Vendita immobili Istria Vendita immobili Dubrovnik Vendita case Zagabria Affitto appartamenti Zagabria Vendita appartamenti Spalato Vendita case Spalato Vendita unità abitative Spalato Affitto appartamenti Spalato Vendita unità abitative ZaraLocalità popolari
Immobili Zagabria Immobili Spalato Immobili Zara Immobili FiumeCategorie popolari
Appartamenti in vendita Case in vendita Ville in vendita Unità abitative in venditaCategorie per località
Appartamenti Zagabria Appartamenti Spalato Appartamenti Fiume Case ZaraRicerca avanzata
Vendita appartamenti Zagabria Vendita immobili Zagabria Vendita immobili Spalato Vendita immobili IstriaDomande Frequenti
Come posso trovare l'immobile ideale in affitto?
Quali tipi di affitti sono disponibili in Croazia?
In Croazia, distinguiamo diversi tipi di affitti, a seconda delle tue esigenze:
- Affitto a lungo termine - ideale per famiglie, coppie e professionisti che cercano stabilità e spazio abitativo per un periodo più lungo (solitamente 12+ mesi)
- Affitto a breve termine - destinato a lavoratori stagionali, studenti o soggiorni temporanei (1-6 mesi)
- Affitto turistico - affitto al giorno o alla settimana, spesso durante l'estate
- Affitto commerciale - spazi per uffici, cliniche, negozi, ecc.
Regent media in tutti i tipi di affitti e offre supporto nella scelta del modello più adatto a seconda della tua situazione di vita o delle tue esigenze aziendali.
Cosa include il prezzo dell'affitto?
È richiesta una cauzione per l'affitto?
Come si svolge il processo di conclusione di un contratto di locazione?
Il processo include i seguenti passaggi:
- Visita e selezione dell'immobile
- Accordo sulle condizioni (prezzo, durata, utenze, obblighi)
- Preparazione del contratto di locazione - preparato dalla nostra agenzia o da un avvocato
- Firma del contratto tra proprietario e inquilino
- Pagamento della cauzione e del primo affitto
- Consegna delle chiavi e registrazione delle condizioni dell'immobile
Se lo si desidera, il contratto può essere autenticato da un notaio. Inoltre, per gli inquilini stranieri o per la registrazione della residenza, il contratto deve essere registrato presso il Ministero degli Interni (MUP). Il nostro team gestisce l'intero processo e garantisce che tutti gli aspetti siano legalmente coperti.
Cos'è la solennizzazione di un contratto di locazione?
La solennizzazione è una procedura di certificazione giudiziaria o notarile di un contratto privato, con la quale il contratto acquisisce la forza di un titolo esecutivo, il che significa che può essere direttamente eseguito (ad es. sfratto, recupero crediti) senza una precedente procedura giudiziaria.
Nella locazione, la solennizzazione è raccomandata quando:
- Il proprietario desidera una protezione legale aggiuntiva - ad es. se l'inquilino non paga l'affitto o si rifiuta di andarsene
- L'inquilino desidera la prova che il contratto è legale - ad es. per la registrazione della residenza, la registrazione presso un datore di lavoro, una banca, ecc.
- Per le locazioni a lungo termine, in particolare per locali commerciali o appartamenti più grandi, la solennizzazione protegge entrambe le parti














