


Zagreb, Srebrnjak - moderan trosoban stan u potkrovlju
Grad Zagreb, Maksimir, Srebrnjak
375,000 €
Ključne informacije
Opis nekretnine
Prodaje se trosoban stan smješten u potkrovlju manje stambene zgrade s ukupno četiri stana, u mirnoj i slijepoj ulici na Srebrnjaku.
Lokacija je tiha i ugodna, okružena zelenilom, a istovremeno izvrsno povezana s ostatkom grada.
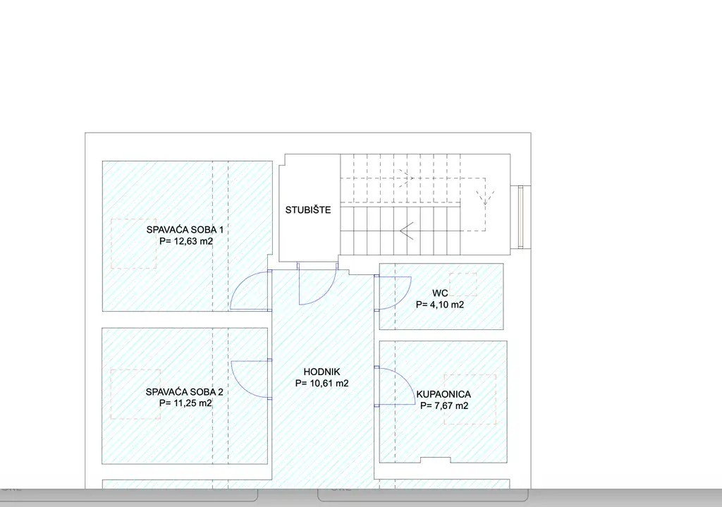
Stan ima 79 m² stambene površine, a sastoji se od dnevnog boravka povezanog s kuhinjom i blagovaonicom, velikog ulaznog hodnika, dvije spavaće sobe, kupaonice s WC-om, tušem i kadom, dodatnog gostinjskog WC-a, zasebne prostorije za perilicu i sušilicu rublja te manje galerije.
Visina potkrovlja od 4,5 metra daje prostoru dodatnu prozračnost i osjećaj otvorenosti.
Stan je uredno i kvalitetno završen te spreman za useljenje. Opremljen je protuprovalnim i zvučno izoliranim vratima, ugradbenim ormarom u hodniku, višeslojnim hrastovim parketom te centralnim etažnim plinskim grijanjem. Prostor je funkcionalan i prilagodljiv različitim životnim potrebama.
Zahvaljujući orijentaciji na istok, jug i zapad, stan je svijetao tijekom cijelog dana, a otvoreni pogled pruža se prema zelenilu i istočnom, južnom i zapadnom dijelu grada.
U neposrednoj blizini nalaze se bolnica Merkur i Klinika Vuk Vrhovac, kao i svi sadržaji potrebni za svakodnevni život – trgovine, škole, vrtići i javni prijevoz.
Autobusna stanica udaljena je oko 110 metara, a Kvaternikov trg nalazi se na jednu stanicu vožnje.
Za dodatne informacije i dogovor oko razgledavanja, slobodno nas kontaktirajte.
Detalji o nekretnini
Tlocrt

Pronađite nekretninu na karti
Online kreditni kalkulator
Izračunajte svoju mjesečnu ratu kredita.
Kreditni kalkulator
Mjesečna rata
Ukupni iznos kredita
Energetski razred
Globalni energetski indeks
Nešto što bi vam se moglo svidjeti
Vidi sveIstražite još lokacija
Povezujemo vas s provjerenim nekretninama prije svih
Popularne pretrage
Popularne lokacije
Nekretnine Zagreb Nekretnine Split Nekretnine Zadar Nekretnine Rijeka Nekretnine Osijek Nekretnine Dubrovnik Nekretnine Pula Nekretnine Šibenik Nekretnine Varaždin Nekretnine Karlovac Nekretnine Makarska Nekretnine TrogirPopularne kategorije
Stanovi na prodaju Kuće na prodaju Vile na prodaju Apartmani na prodaju Stanovi za najam Kuće za najam Vile za najam Apartmani za najam Građevinska zemljišta Poljoprivredna zemljišta Poslovni prostori Luksuzne nekretnineKategorije po lokacijama
Stanovi Zagreb Stanovi Split Stanovi Rijeka Kuće Zadar Vile Hvar Apartmani Rovinj Stanovi Pula Kuće Zagreb Kuće Split Kuće Dubrovnik Kuće Rijeka Vile BračProširena pretraga
Stanovi prodaja Zagreb Prodaja nekretnina Zagreb Prodaja nekretnina Split Prodaja nekretnina Istra Prodaja nekretnina Dubrovnik Kuće prodaja Zagreb Stanovi najam Zagreb Stanovi prodaja Split Kuće prodaja Split Apartmani prodaja Split Stanovi najam Split Apartmani prodaja ZadarPopularne lokacije
Nekretnine Zagreb Nekretnine Split Nekretnine Zadar Nekretnine RijekaPopularne kategorije
Stanovi na prodaju Kuće na prodaju Vile na prodaju Apartmani na prodajuKategorije po lokacijama
Stanovi Zagreb Stanovi Split Stanovi Rijeka Kuće ZadarProširena pretraga
Stanovi prodaja Zagreb Prodaja nekretnina Zagreb Prodaja nekretnina Split Prodaja nekretnina IstraČesto postavljena pitanja
Koji su prvi koraci pri kupnji nekretnine u Hrvatskoj?
Koliki su svi troškovi vezani uz kupnju nekretnine?
Uz cijenu same nekretnine, kupac snosi i dodatne troškove kao što su:
- Porez na promet nekretnina – 3% od tržišne vrijednosti (osim za novogradnju s PDV-om)
- Agencijska provizija – obično 2–3% + PDV (uključuje pravnu provjeru i savjetovanje)
- Javnobilježnički troškovi – ovjera potpisa i izrada solemnizacije ugovora
- Troškovi upisa u zemljišne knjige
- Bankovni troškovi (ako kupujete putem kredita)
Regent će vam unaprijed pripremiti detaljnu procjenu svih troškova kako biste mogli planirati budžet bez iznenađenja.






















































