


Zagreb, Centar - elegantno renoviran stan u centru grada
Grad Zagreb, Donji Grad, Donji grad
435,000 €
Ključne informacije
Opis nekretnine
Na jednoj od najtraženijih gradskih lokacija, u samom centru i neposredno uz tramvajsku zonu, smješten je ovaj prostran i iznimno ugodan stan koji spaja mir, funkcionalnost i urbani način života.
Sve važne gradske sadržaje imate na dohvat ruke, dok sam stan pruža kvalitetu i komfor koji se rijetko nalaze u centru grada.
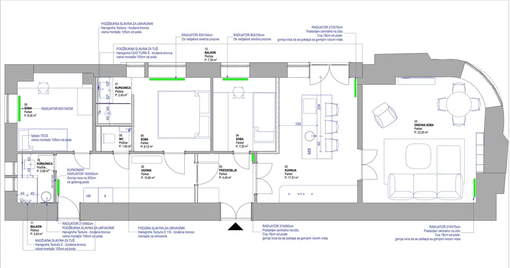
Stan se nalazi na prvom katu i ima ukupno 92 m².
U potpunosti je adaptiran i renoviran ove godine, s promišljenim rasporedom koji uključuje veliki dnevni boravak, kuhinju, dvije spavaće sobe, zasebnu radnu sobu, WC, dvije kupaonice te dvije lođe koje prostoru daju dodatnu svjetlost i osjećaj širine.
Zahvaljujući izvrsnoj lokaciji i funkcionalnom rasporedu, stan predstavlja odličnu priliku kako za ugodan život, tako i kao sigurnu investiciju za dugoročni ili turistički najam.
Zgrada je uredna i redovito održavana, nije pretrpjela oštećenja u potresu, a krov je nedavno u potpunosti obnovljen, što dodatno potvrđuje kvalitetu i dugoročnu vrijednost ove nekretnine.
Za sva dodatna pitanja slobodno nas kontaktirajte.
Detalji o nekretnini
Tlocrt

Pronađite nekretninu na karti
Online kreditni kalkulator
Izračunajte svoju mjesečnu ratu kredita.
Kreditni kalkulator
Mjesečna rata
Ukupni iznos kredita
Energetski razred
Globalni energetski indeks
Nešto što bi vam se moglo svidjeti
Vidi sveIstražite još lokacija
Povezujemo vas s provjerenim nekretninama prije svih
Popularne pretrage
Popularne lokacije
Nekretnine Zagreb Nekretnine Split Nekretnine Zadar Nekretnine Rijeka Nekretnine Osijek Nekretnine Dubrovnik Nekretnine Pula Nekretnine Šibenik Nekretnine Varaždin Nekretnine Karlovac Nekretnine Makarska Nekretnine TrogirPopularne kategorije
Stanovi na prodaju Kuće na prodaju Vile na prodaju Apartmani na prodaju Stanovi za najam Kuće za najam Vile za najam Apartmani za najam Građevinska zemljišta Poljoprivredna zemljišta Poslovni prostori Luksuzne nekretnineKategorije po lokacijama
Stanovi Zagreb Stanovi Split Stanovi Rijeka Kuće Zadar Vile Hvar Apartmani Rovinj Stanovi Pula Kuće Zagreb Kuće Split Kuće Dubrovnik Kuće Rijeka Vile BračProširena pretraga
Stanovi prodaja Zagreb Prodaja nekretnina Zagreb Prodaja nekretnina Split Prodaja nekretnina Istra Prodaja nekretnina Dubrovnik Kuće prodaja Zagreb Stanovi najam Zagreb Stanovi prodaja Split Kuće prodaja Split Apartmani prodaja Split Stanovi najam Split Apartmani prodaja ZadarPopularne lokacije
Nekretnine Zagreb Nekretnine Split Nekretnine Zadar Nekretnine RijekaPopularne kategorije
Stanovi na prodaju Kuće na prodaju Vile na prodaju Apartmani na prodajuKategorije po lokacijama
Stanovi Zagreb Stanovi Split Stanovi Rijeka Kuće ZadarProširena pretraga
Stanovi prodaja Zagreb Prodaja nekretnina Zagreb Prodaja nekretnina Split Prodaja nekretnina IstraČesto postavljena pitanja
Koji su prvi koraci pri kupnji nekretnine u Hrvatskoj?
Koliki su svi troškovi vezani uz kupnju nekretnine?
Uz cijenu same nekretnine, kupac snosi i dodatne troškove kao što su:
- Porez na promet nekretnina – 3% od tržišne vrijednosti (osim za novogradnju s PDV-om)
- Agencijska provizija – obično 2–3% + PDV (uključuje pravnu provjeru i savjetovanje)
- Javnobilježnički troškovi – ovjera potpisa i izrada solemnizacije ugovora
- Troškovi upisa u zemljišne knjige
- Bankovni troškovi (ako kupujete putem kredita)
Regent će vam unaprijed pripremiti detaljnu procjenu svih troškova kako biste mogli planirati budžet bez iznenađenja.

























































































