


Korčula- Luksuzan apartman s terasom i garažom u ekskluzivnom kompleks
Dubrovačko-neretvanska, Korčula, Žrnovo
Na upit
Ključne informacije
Opis nekretnine
Na atraktivnoj lokaciji na otoku Korčuli, u naselju Žrnovo, u sklopu prestižnog kompleksa Korčula Hill, nalazi se prostran i moderno uređen apartman koji predstavlja idealan spoj komfora, privatnosti i mediteranskog načina života.
Smješten u neposrednoj blizini popularne plaže La’Banya, ovaj apartman pruža savršenu priliku kako za odmor, tako i za investiciju u turistički najam.
Apartman se nalazi u prizemlju zgrade, istočni dio, te čini zasebnu funkcionalnu cjelinu.
Ukupna korisna površina zatvorenog prostora iznosi 106,99 m², uz dodatni natkriveni balkon površine 28,36 m² koji pruža ugodan vanjski prostor za opuštanje i druženje.
Uz apartman dolaze i dva garažna parkirna mjesta u podrumu zgrade, ukupne površine 24,75 m², što dodatno doprinosi praktičnosti i vrijednosti nekretnine.
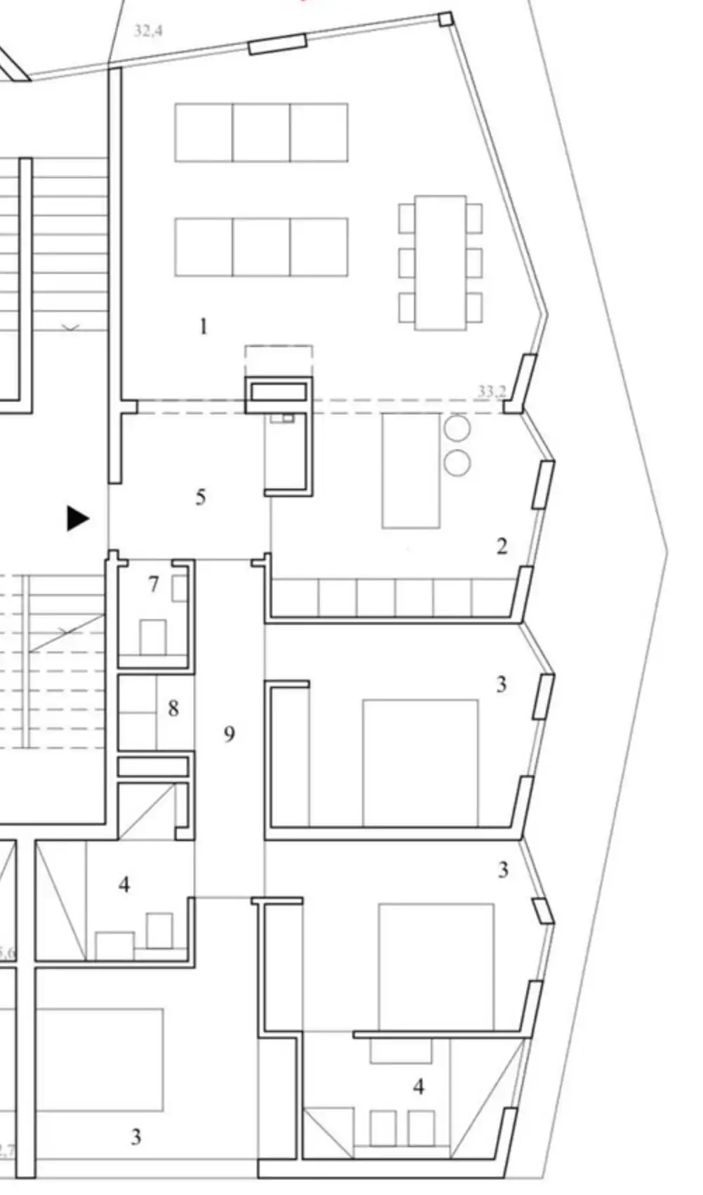
Raspored je pažljivo osmišljen kako bi pružio maksimalnu funkcionalnost i komfor. Sastoji se od ulaznog prostora, kuhinje povezane s dnevnim boravkom i blagovaonicom, tri spavaće sobe, dvije kupaonice, dodatnog WC-a, spremišta i hodnika.
Prostrani dnevni dio prirodno se nadovezuje na natkrivenu terasu, stvarajući ugodan prostor za boravak tijekom cijele godine.
Dodatna vrijednost ove nekretnine je pristup sadržajima unutar kompleksa, uključujući bazen, teniski teren i teretanu, što osigurava visoku razinu komfora i ekskluzivnosti.
Lokacija apartmana pruža savršen balans između mira i dostupnosti – smješten u tišem dijelu otoka, a istovremeno u blizini mora, plaža i svih potrebnih sadržaja.
Ovakva pozicija čini nekretninu izuzetno atraktivnom za vlastiti odmor, ali i kao investiciju s velikim turističkim potencijalom.
Za više informacija i dogovor oko razgledavanja, slobodno nas kontaktirajte.
Detalji o nekretnini
Tlocrt

Pronađite nekretninu na karti
Online kreditni kalkulator
Izračunajte svoju mjesečnu ratu kredita.
Kreditni kalkulator
Mjesečna rata
Ukupni iznos kredita
Energetski razred
Globalni energetski indeks
Nešto što bi vam se moglo svidjeti
Vidi sveIstražite još lokacija
Povezujemo vas s provjerenim nekretninama prije svih
Popularne pretrage
Popularne lokacije
Nekretnine Zagreb Nekretnine Split Nekretnine Zadar Nekretnine Rijeka Nekretnine Osijek Nekretnine Dubrovnik Nekretnine Pula Nekretnine Šibenik Nekretnine Varaždin Nekretnine Karlovac Nekretnine Makarska Nekretnine TrogirPopularne kategorije
Stanovi na prodaju Kuće na prodaju Vile na prodaju Apartmani na prodaju Stanovi za najam Kuće za najam Vile za najam Apartmani za najam Građevinska zemljišta Poljoprivredna zemljišta Poslovni prostori Luksuzne nekretnineKategorije po lokacijama
Stanovi Zagreb Stanovi Split Stanovi Rijeka Kuće Zadar Vile Hvar Apartmani Rovinj Stanovi Pula Kuće Zagreb Kuće Split Kuće Dubrovnik Kuće Rijeka Vile BračProširena pretraga
Stanovi prodaja Zagreb Prodaja nekretnina Zagreb Prodaja nekretnina Split Prodaja nekretnina Istra Prodaja nekretnina Dubrovnik Kuće prodaja Zagreb Stanovi najam Zagreb Stanovi prodaja Split Kuće prodaja Split Apartmani prodaja Split Stanovi najam Split Apartmani prodaja ZadarPopularne lokacije
Nekretnine Zagreb Nekretnine Split Nekretnine Zadar Nekretnine RijekaPopularne kategorije
Stanovi na prodaju Kuće na prodaju Vile na prodaju Apartmani na prodajuKategorije po lokacijama
Stanovi Zagreb Stanovi Split Stanovi Rijeka Kuće ZadarProširena pretraga
Stanovi prodaja Zagreb Prodaja nekretnina Zagreb Prodaja nekretnina Split Prodaja nekretnina IstraČesto postavljena pitanja
Koji su prvi koraci pri kupnji nekretnine u Hrvatskoj?
Koliki su svi troškovi vezani uz kupnju nekretnine?
Uz cijenu same nekretnine, kupac snosi i dodatne troškove kao što su:
- Porez na promet nekretnina – 3% od tržišne vrijednosti (osim za novogradnju s PDV-om)
- Agencijska provizija – obično 2–3% + PDV (uključuje pravnu provjeru i savjetovanje)
- Javnobilježnički troškovi – ovjera potpisa i izrada solemnizacije ugovora
- Troškovi upisa u zemljišne knjige
- Bankovni troškovi (ako kupujete putem kredita)
Regent će vam unaprijed pripremiti detaljnu procjenu svih troškova kako biste mogli planirati budžet bez iznenađenja.





























