


Zagrzeb, Dubrava - dom rodzinny z możliwością inwestycyjną
Miasto Zagrzeb, Gornja Dubrava, Gornja Dubrava
360,000 €
Kluczowe informacje
Opis
Dom rodzinny znajduje się w spokojnej części Zagrzebia-Dubrava, w zielonym otoczeniu ulicy Potočka. Nieruchomość położona jest na przestronnej działce i jest idealna dla rodzin, inwestorów lub wizjonerów, którzy szukają połączenia komfortu i potencjału.
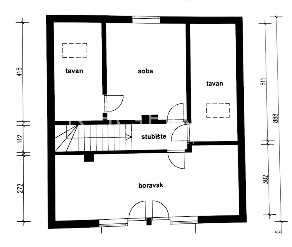
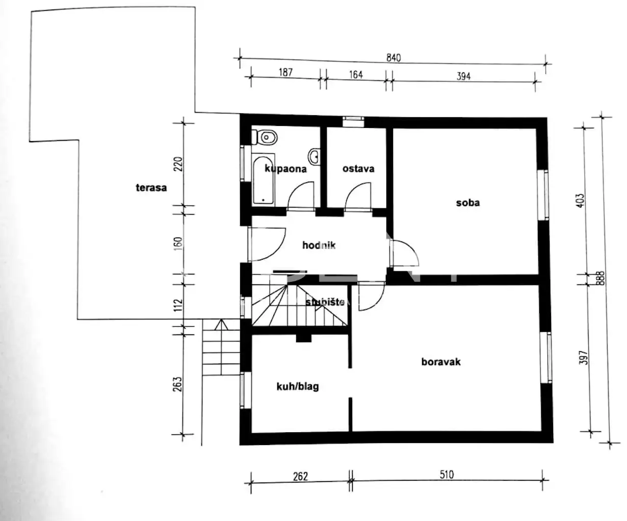
Dom ma powierzchnię całkowitą 180 m², a rozciąga się na działce o powierzchni 900 m².
Parter składa się z sypialni, salonu z jadalnią i oddzielnej kuchni, łazienki oraz schowka w korytarzu.
Piętro składa się z dwóch sypialni i dwóch poddaszy (pomieszczeń gospodarczych) - razem dom tworzy funkcjonalną czteropokojową nieruchomość rodzinną.
Na zewnątrz znajduje się garaż oraz parking zewnętrzny na 2 do 3 samochodów, a w razie potrzeby nawet 4.
Przy domu znajduje się również taras o powierzchni 35 m², idealny na spokojny wypoczynek i spotkania.
Wyposażony jest w centralne ogrzewanie gazowe i klimatyzację.
Nieruchomość znajduje się w bezpośrednim sąsiedztwie szkoły (400 m), przedszkola (150 m), wydziału, ośrodka zdrowia, Szpitala KB Dubrava (150 m), centrów handlowych, obiektów sportowych, lasu i parku Maksimir.
Połączenia tramwajowe i autobusowe są doskonałe, więc do centrum miasta można dojechać w zaledwie 20 minut.
Ulica jest cicha i bezpieczna, a sąsiedztwo znane jest z jakości życia i przyjemnego otoczenia rodzinnego.
Działka daje możliwość dodatkowej zabudowy - nowych lokali mieszkalnych, garaży lub lokali użytkowych, co czyni tę nieruchomość doskonałą okazją zarówno do życia, jak i inwestycji.
Aby uzyskać więcej informacji lub umówić się na wizytę, skontaktuj się z nami.
Szczegóły nieruchomości
Plan piętra



Znajdź na mapie
Internetowy kalkulator kredytowy
Oblicz swoją miesięczną ratę kredytu.
Kalkulator kredytowy
Miesięczna rata
Całkowita kwota kredytu
Klasa energetyczna
Globalny wskaźnik efektywności energetycznej
Może Ci się również spodobać
Zobacz wszystkiePrzeglądaj więcej lokalizacji
Łączymy Cię ze zweryfikowanymi nieruchomościami, zanim ktokolwiek inny
Popularne wyszukiwania
Popularne lokalizacje
Nieruchomości Zagrzeb Nieruchomości Split Nieruchomości Zadar Nieruchomości Rijeka Nieruchomości Osijek Nieruchomości Dubrownik Nieruchomości Pula Nieruchomości Šibenik Nieruchomości Varaždin Nieruchomości Karlovac Nieruchomości Makarska Nieruchomości TrogirPopularne kategorie
Mieszkania na sprzedaż Domy na sprzedaż Wille na sprzedaż Jednostki apartamentowe na sprzedaż Mieszkania do wynajęcia Domy do wynajęcia Wille do wynajęcia Jednostki apartamentowe do wynajęcia Działki budowlane Grunty rolne Lokale usługowe Luksusowe nieruchomościKategorie według lokalizacji
Mieszkania Zagrzeb Mieszkania Split Mieszkania Rijeka Domy Zadar Wille Hvar Jednostki apartamentowe Rovinj Mieszkania Pula Domy Zagrzeb Domy Split Domy Dubrownik Domy Rijeka Wille BračRozszerzone wyszukiwanie
Mieszkania sprzedaż Zagrzeb Nieruchomości sprzedaż Zagrzeb Nieruchomości sprzedaż Split Nieruchomości sprzedaż Istria Nieruchomości sprzedaż Dubrownik Domy sprzedaż Zagrzeb Mieszkania wynajem Zagrzeb Mieszkania sprzedaż Split Domy sprzedaż Split Jednostki apartamentowe sprzedaż Split Mieszkania wynajem Split Jednostki apartamentowe sprzedaż ZadarPopularne lokalizacje
Nieruchomości Zagrzeb Nieruchomości Split Nieruchomości Zadar Nieruchomości RijekaPopularne kategorie
Mieszkania na sprzedaż Domy na sprzedaż Wille na sprzedaż Jednostki apartamentowe na sprzedażKategorie według lokalizacji
Mieszkania Zagrzeb Mieszkania Split Mieszkania Rijeka Domy ZadarRozszerzone wyszukiwanie
Mieszkania sprzedaż Zagrzeb Nieruchomości sprzedaż Zagrzeb Nieruchomości sprzedaż Split Nieruchomości sprzedaż IstriaCzęsto zadawane pytania
Jakie są pierwsze kroki przy zakupie nieruchomości w Chorwacji?
Jakie są wszystkie koszty związane z zakupem nieruchomości?
Oprócz ceny samej nieruchomości, kupujący ponosi również dodatkowe koszty, takie jak:
- Podatek od przeniesienia własności nieruchomości – 3% wartości rynkowej (z wyjątkiem nowego budownictwa z VAT)
- Prowizja agencyjna – zazwyczaj 2-3% + VAT (obejmuje kontrolę prawną i doradztwo)
- Opłaty notarialne – za poświadczenie podpisów i notarialne poświadczenie umowy
- Koszty wpisu do księgi wieczystej
- Koszty bankowe (jeśli kupujesz na kredyt)
Regent przygotuje szczegółową wycenę wszystkich kosztów z góry, abyś mógł zaplanować swój budżet bez niespodzianek.




































































