
Zagreb, Zentrum - Geschäftsraum in attraktiver Lage
Stadt Zagreb, Untere Stadt, Donji grad
2,700 €
Schlüsselinformation
Beschreibung
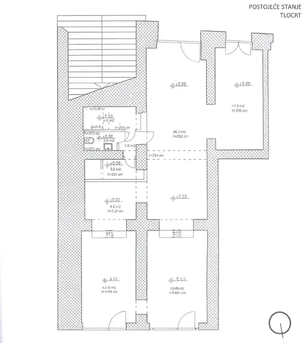
Zu vermieten ist eine Gewerbefläche von insgesamt 120 m² in ausgezeichneter Lage in der Nähe des Ban-Jelačić-Platzes und des Marktes Dolac. Die Räumlichkeit wird derzeit als Supermarkt genutzt und eignet sich aufgrund ihrer Aufteilung und Größe für verschiedene Einzelhandels- und Dienstleistungsaktivitäten.
Die Räumlichkeit besteht aus mehreren miteinander verbundenen Räumen.
Am Eingang befinden sich zwei größere Räume mit einer Fläche von ca. 20,0 m² und 20,5 m², die als Hauptverkaufsbereich genutzt werden. Ein zentraler Raum mit einer Fläche von 25,2 m² verbindet den Eingangsbereich mit dem Rest der Fläche. Im Anschluss befinden sich drei kleinere Räume mit einer Fläche von 9,0 m², 6,8 m² und 4,6 m², die als Lager-, Technik- oder Nebenräume dienen können.
Die Räumlichkeit umfasst auch einen Sanitärbereich sowie einen zugehörigen Flurbereich, der eine funktionale Bewegung durch das Objekt ermöglicht.
Die Gesamtfläche ist so aufgeteilt, dass eine effiziente Nutzung jedes Raumes ermöglicht wird, und die Lage im Herzen der Stadt trägt zusätzlich zur Sichtbarkeit und Erreichbarkeit des Geschäfts bei.
Für weitere Informationen oder zur Vereinbarung einer Besichtigung stehen wir Ihnen gerne zur Verfügung.
Grundriss

Auf Karte finden
Online-Kreditrechner
Berechnen Sie Ihre monatliche Kreditzahlung.
Kreditrechner
Monatliche Rate
Gesamtdarlehensbetrag
Energieklasse
Globaler Energie-Leistungs-Index
Das könnte Ihnen auch gefallen
Alle ansehenWeitere Standorte erkunden
Wir verbinden Sie mit verifizierten Immobilien vor allen anderen
Beliebte Suchen
Beliebte Standorte
Immobilien Zagreb Immobilien Split Immobilien Zadar Immobilien Rijeka Immobilien Osijek Immobilien Dubrovnik Immobilien Pula Immobilien Šibenik Immobilien Varaždin Immobilien Karlovac Immobilien Makarska Immobilien TrogirBeliebte Kategorien
Wohnungen zum Verkauf Häuser zum Verkauf Villen zum Verkauf Apartmenteinheiten zum Verkauf Wohnungen zur Miete Häuser zur Miete Villen zur Miete Apartmenteinheiten zur Miete Baugrundstücke Landwirtschaftliche Flächen Geschäftsräume LuxusimmobilienKategorien nach Standort
Wohnungen Zagreb Wohnungen Split Wohnungen Rijeka Häuser Zadar Villen Hvar Apartmenteinheiten Rovinj Wohnungen Pula Häuser Zagreb Häuser Split Häuser Dubrovnik Häuser Rijeka Villen BračErweiterte Suche
Wohnungen Verkauf Zagreb Immobilien Verkauf Zagreb Immobilien Verkauf Split Immobilien Verkauf Istrien Immobilien Verkauf Dubrovnik Häuser Verkauf Zagreb Wohnungen mieten Zagreb Wohnungen Verkauf Split Häuser Verkauf Split Apartmenteinheiten Verkauf Split Wohnungen mieten Split Apartmenteinheiten Verkauf ZadarBeliebte Standorte
Immobilien Zagreb Immobilien Split Immobilien Zadar Immobilien RijekaBeliebte Kategorien
Wohnungen zum Verkauf Häuser zum Verkauf Villen zum Verkauf Apartmenteinheiten zum VerkaufKategorien nach Standort
Wohnungen Zagreb Wohnungen Split Wohnungen Rijeka Häuser ZadarErweiterte Suche
Wohnungen Verkauf Zagreb Immobilien Verkauf Zagreb Immobilien Verkauf Split Immobilien Verkauf IstrienHäufig gestellte Fragen
Wie finde ich die ideale Mietimmobilie?
Welche Arten von Vermietungen gibt es in Kroatien?
In Kroatien unterscheiden wir je nach Ihren Bedürfnissen verschiedene Arten von Vermietungen:
- Langzeitmiete – ideal für Familien, Paare und Berufstätige, die Stabilität und Wohnraum für einen längeren Zeitraum suchen (in der Regel 12+ Monate)
- Kurzzeitmiete – für Saisonarbeiter, Studenten oder vorübergehende Aufenthalte (1-6 Monate)
- Touristenvermietung – Vermietung pro Tag oder Woche, oft im Sommer
- Geschäftsvermietung – Räume für Büros, Kliniken, Geschäfte usw.
Regent vermittelt bei allen Arten von Vermietungen und bietet Unterstützung bei der Auswahl des am besten geeigneten Modells je nach Ihrer Lebenssituation oder Ihren geschäftlichen Bedürfnissen.
Was beinhaltet der Mietpreis?
Ist eine Kaution für die Anmietung erforderlich?
Wie sieht der Prozess des Abschlusses eines Mietvertrags aus?
Der Prozess umfasst die folgenden Schritte:
- Besichtigung und Auswahl der Immobilie
- Vereinbarung der Bedingungen (Preis, Dauer, Nebenkosten, Verpflichtungen)
- Vorbereitung des Mietvertrags – erstellt von unserer Agentur oder einem Anwalt
- Unterzeichnung des Vertrags zwischen Eigentümer und Mieter
- Zahlung der Kaution und der ersten Miete
- Übergabe der Schlüssel und Protokollierung des Zustands der Immobilie
Auf Wunsch kann der Vertrag notariell beglaubigt werden. Außerdem muss der Vertrag für ausländische Mieter oder zur Wohnsitzanmeldung beim Innenministerium (MUP) registriert werden. Unser Team verwaltet den gesamten Prozess und stellt sicher, dass alle Aspekte rechtlich abgedeckt sind.
Was ist die Beurkundung eines Mietvertrags?
Die Beurkundung ist ein Verfahren zur gerichtlichen oder notariellen Beglaubigung eines privaten Vertrags, durch das der Vertrag die Kraft eines vollstreckbaren Dokuments erlangt – was bedeutet, dass er direkt vollstreckt werden kann (z. B. Räumung, Eintreibung von Schulden) ohne ein vorheriges Gerichtsverfahren.
Bei der Vermietung wird eine Beurkundung empfohlen, wenn:
- Der Eigentümer zusätzlichen Rechtsschutz wünscht – z. B. wenn der Mieter keine Miete zahlt oder sich weigert auszuziehen
- Der Mieter einen Nachweis darüber wünscht, dass der Vertrag rechtmäßig ist – z. B. zur Wohnsitzanmeldung, zur Registrierung bei einem Arbeitgeber, einer Bank usw.
- Bei langfristigen Mietverträgen, insbesondere bei Geschäftsräumen oder größeren Wohnungen, schützt die Beurkundung beide Parteien






















