


Podstrana - 1-Zimmer-Wohnung mit Garten
Gespanschaft Split-Dalmatien, Podstrana, Podstrana
262,680 €
Schlüsselinformation
Beschreibung
Im Erdgeschoss eines modernen Neubaus in Podstrana befindet sich die Wohnung S1 in Gebäude A (östliches Gebäude), die in unserem exklusiven Verkauf angeboten wird. Es handelt sich um eine Wohneinheit, die Privatsphäre, einen eigenen Außenbereich und die unmittelbare Nähe zum Meer vereint. Aufgrund der Aufteilung und des zusätzlichen Außenbereichs eignet sich die Wohnung für Paare, kleinere Familien, aber auch für Käufer, die eine hochwertige Immobilie zum Wohnen oder als langfristige Investition an einem attraktiven Standort suchen.
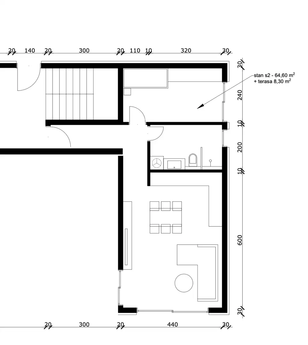
Die Gesamtnettofläche der Wohnung beträgt 41,86 m². Die Wohnung besteht aus einem Eingangsbereich, einem Schlafzimmer, einem Badezimmer und einem Wohnbereich, der Küche, Esszimmer und Wohnzimmer mit einer Fläche von 19,81 m² vereint. Vom Wohnbereich aus gelangt man auf die Loggia von 4,46 m², und einen besonderen Wert erhält die Wohnung durch den Privatgarten von 26,80 m², der zusätzlichen Platz für den Aufenthalt im Freien, für geselliges Beisammensein und für die Gestaltung nach eigenen Wünschen bietet. Die Wohnung ist mit einer Klimaanlage, PVC-Tischlerei und Einbruchschutztüren ausgestattet, was Komfort und Sicherheit im täglichen Gebrauch gewährleistet.
Das Projekt wurde als moderner Wohnkomplex konzipiert, der den Schwerpunkt auf Funktionalität, Privatsphäre und Wohnqualität legt. Die Architektur folgt dem modernen mediterranen Stil mit klaren Linien, während die Aufteilung der Wohnungen mit dem Schwerpunkt auf Funktionalität, Offenheit der Räume und natürlicher Beleuchtung geplant wurde. Das gesamte Konzept des Projekts ist auf eine ruhige familiäre Umgebung, aber auch auf den langfristigen Marktwert der Immobilien innerhalb des Komplexes ausgerichtet.
Das Projekt befindet sich etwa 150 Meter vom Meer entfernt, in einem ruhigen Teil von Podstrana mit guter Verkehrsanbindung und der Nähe zu allen wichtigen Einrichtungen, die für das tägliche Leben benötigt werden. In der Nähe befinden sich Geschäfte, Schulen, Restaurants, Promenaden am Meer und öffentliche Verkehrsmittel, was den Standort sowohl für das ganzjährige Wohnen als auch für die touristische Vermietung geeignet macht. Das Projekt befindet sich in der Zagorska-Straße, in einer Zone, die ein Gleichgewicht zwischen ruhigem Wohnen und der täglichen Verfügbarkeit von Inhalten bietet.
Der Baubeginn von Gebäude A ist für September 2026 vorgesehen, während die Fertigstellung des Projekts bis Ende 2027 geplant ist. Die Zahlung ist nach Bauphasen möglich. Es besteht die Möglichkeit, einen Garagenstellplatz zum Preis von 22.000 bis 25.000 EUR, einen Außenparkplatz zum Preis von 15.000 EUR sowie einen zusätzlichen Abstellraum zu erwerben, je nach Verfügbarkeit.
Die Wohnung S1 ist im exklusiven Verkauf erhältlich und stellt eine hervorragende Gelegenheit zum Kauf einer Wohnung in einem Neubau mit Garten und Meerblick in Podstrana dar.
Für weitere Informationen und zur Vereinbarung einer Besichtigung kontaktieren Sie uns bitte.
Immobiliendetails
Grundriss

Auf Karte finden
Online-Kreditrechner
Berechnen Sie Ihre monatliche Kreditzahlung.
Kreditrechner
Monatliche Rate
Gesamtdarlehensbetrag
Energieklasse
Globaler Energie-Leistungs-Index
Das könnte Ihnen auch gefallen
Alle ansehenWeitere Standorte erkunden
Wir verbinden Sie mit verifizierten Immobilien vor allen anderen
Beliebte Suchen
Beliebte Standorte
Immobilien Zagreb Immobilien Split Immobilien Zadar Immobilien Rijeka Immobilien Osijek Immobilien Dubrovnik Immobilien Pula Immobilien Šibenik Immobilien Varaždin Immobilien Karlovac Immobilien Makarska Immobilien TrogirBeliebte Kategorien
Wohnungen zum Verkauf Häuser zum Verkauf Villen zum Verkauf Apartmenteinheiten zum Verkauf Wohnungen zur Miete Häuser zur Miete Villen zur Miete Apartmenteinheiten zur Miete Baugrundstücke Landwirtschaftliche Flächen Geschäftsräume LuxusimmobilienKategorien nach Standort
Wohnungen Zagreb Wohnungen Split Wohnungen Rijeka Häuser Zadar Villen Hvar Apartmenteinheiten Rovinj Wohnungen Pula Häuser Zagreb Häuser Split Häuser Dubrovnik Häuser Rijeka Villen BračErweiterte Suche
Wohnungen Verkauf Zagreb Immobilien Verkauf Zagreb Immobilien Verkauf Split Immobilien Verkauf Istrien Immobilien Verkauf Dubrovnik Häuser Verkauf Zagreb Wohnungen mieten Zagreb Wohnungen Verkauf Split Häuser Verkauf Split Apartmenteinheiten Verkauf Split Wohnungen mieten Split Apartmenteinheiten Verkauf ZadarBeliebte Standorte
Immobilien Zagreb Immobilien Split Immobilien Zadar Immobilien RijekaBeliebte Kategorien
Wohnungen zum Verkauf Häuser zum Verkauf Villen zum Verkauf Apartmenteinheiten zum VerkaufKategorien nach Standort
Wohnungen Zagreb Wohnungen Split Wohnungen Rijeka Häuser ZadarErweiterte Suche
Wohnungen Verkauf Zagreb Immobilien Verkauf Zagreb Immobilien Verkauf Split Immobilien Verkauf IstrienHäufig gestellte Fragen
Was sind die ersten Schritte beim Kauf von Immobilien in Kroatien?
Welche Kosten sind mit dem Kauf von Immobilien verbunden?
Zusätzlich zum Preis der Immobilie selbst trägt der Käufer auch zusätzliche Kosten wie:
- Grunderwerbsteuer – 3 % des Marktwerts (außer bei Neubau mit Mehrwertsteuer)
- Agenturprovision – in der Regel 2-3 % + MwSt. (einschließlich Rechtsprüfung und Beratung)
- Notargebühren – für die Beglaubigung von Unterschriften und die Beurkundung des Vertrags
- Grundbucheintragungskosten
- Bankkosten (wenn Sie mit einem Darlehen kaufen)
Regent erstellt Ihnen vorab eine detaillierte Kostenschätzung, damit Sie Ihr Budget ohne Überraschungen planen können.








































































































