


Záhreb, Trešnjevka - dvojpodlažný štvorizbový byt s VPM a komorou
Mesto Záhreb, Trešnjevka - Sever, Trešnjevka
442,800 €
Kľúčové informácie
Popis
Tento štvorizbový byt s orientáciou východ – západ sa nachádza na 1. poschodí modernej novostavby na výbornom mieste v severnej časti Trešnjevky, ktorá ponúka všetky výhody na dosah ruky. Projekt sa rozprestiera na 3 poschodiach a pozostáva z 3 bytových jednotiek, ktoré poskytujú intimitu a pokoj.
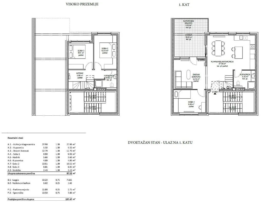
Bytová jednotka pozostáva z:
- Kuchyne a jedálne + obývacej izby (21,54 m2)
- 2 kúpeľní (3,92 m2 a 4,22 m2)
- 3 spální (11,40 m2, 11,22 m2 a 7,87 m2)
- Chodby (3,22 m2)
- Schodiska (4,49 m2 a 4,15 m2)
- Loggie (10,22 m2 x 0,75 = 7,67 m2)
- Zastrešeného balkóna (6,62 m2 x 0,50 = 3,31 m2)
Vybavenie a kvalita:
- Kúrenie a chladenie: tepelné čerpadlo s podlahovým kúrením + klimatizácia
- Tesárske výrobky: trojvrstvové PVC tesárske výrobky
- Podlahy: parkety z bieleho duba a keramika prvej triedy
- Energetická trieda: A+, byt je postavený v súlade s najvyššími štandardmi energetickej účinnosti.
- Ostatné: bezpečnostné dvere, video vrátnik, sprchovacie kabíny, bezplatné parkovanie na ulici
Táto novostavba sa nachádza v pokojnom prostredí; v zóne rodinných a obytných domov a bytových domov a blízkosť verejnej mestskej dopravy, mestskej a prímestskej železnice, ale aj všetkých životne dôležitých zariadení (materská škola, škola, zdravotné stredisko, obchody, banky) uľahčuje každodenný život.
Budova je vzdialená len 50 metrov od autobusovej zastávky, kde prechádza linka, ktorá vedie na námestie Mažuranić, 10 minút chôdze od konečnej električiek na Črnomercu, 15 minút od Trešnjevačka Remiza a 5 minút od železničnej stanice Kustošija.
Okrem toho sa ľahko dostanete aj k hlavným komunikáciám, ako je Slavonska avenija, a tento komplex je ideálnou voľbou pre pohodlný život v srdci Záhrebu!
Ide o železobetónovú budovu vysokých štandardov s tepelnou izoláciou fasády (15 cm), trojvrstvovými PVC tesárskymi výrobkami, vysoko kvalitnými sanitárnymi zariadeniami, keramikou a parketami z bieleho duba.
V cene bytu je zahrnuté parkovacie miesto (11 m2 x 0,20 = 2,20 m²) a sklad (12,83 m2 x 0,50 = 6,42 m2).
Plánované ukončenie výstavby: II. štvrťrok 2025.
Pre ďalšie informácie alebo dohodnutie prehliadky nás neváhajte kontaktovať!
Detaily nehnuteľnosti
Pôdorys



Nájsť na mape
Online kalkulačka úveru
Vypočítajte si mesačnú splátku úveru.
Kalkulačka úveru
Mesačná splátka
Celková výška úveru
Energetická trieda
Celkový index energetickej náročnosti
Mohlo by sa vám páčiť
Zobraziť všetkoPreskúmajte viac lokalít
Spájame vás s overenými nehnuteľnosťami skôr ako ktokoľvek iný
Obľúbené vyhľadávania
Obľúbené lokality
Nehnuteľnosti Záhreb Nehnuteľnosti Split Nehnuteľnosti Zadar Nehnuteľnosti Rijeka Nehnuteľnosti Osijek Nehnuteľnosti Dubrovník Nehnuteľnosti Pula Nehnuteľnosti Šibenik Nehnuteľnosti Varaždin Nehnuteľnosti Karlovac Nehnuteľnosti Makarska Nehnuteľnosti TrogirObľúbené kategórie
Byty na predaj Domy na predaj Vily na predaj Bytové jednotky na predaj Byty na prenájom Domy na prenájom Vily na prenájom Bytové jednotky na prenájom Stavebné pozemky Poľnohospodárske pozemky Obchodné priestory Luxusné nehnuteľnostiKategórie podľa lokality
Byty Záhreb Byty Split Byty Rijeka Domy Zadar Vily Hvar Bytové jednotky Rovinj Byty Pula Domy Záhreb Domy Split Domy Dubrovník Domy Rijeka Vily BračRozšírené vyhľadávanie
Byty na predaj Záhreb Nehnuteľnosti na predaj Záhreb Nehnuteľnosti na predaj Split Nehnuteľnosti na predaj Istria Nehnuteľnosti na predaj Dubrovník Domy na predaj Záhreb Byty na prenájom Záhreb Byty na predaj Split Domy na predaj Split Bytové jednotky na predaj Split Byty na prenájom Split Bytové jednotky na predaj ZadarObľúbené lokality
Nehnuteľnosti Záhreb Nehnuteľnosti Split Nehnuteľnosti Zadar Nehnuteľnosti RijekaObľúbené kategórie
Byty na predaj Domy na predaj Vily na predaj Bytové jednotky na predajKategórie podľa lokality
Byty Záhreb Byty Split Byty Rijeka Domy ZadarRozšírené vyhľadávanie
Byty na predaj Záhreb Nehnuteľnosti na predaj Záhreb Nehnuteľnosti na predaj Split Nehnuteľnosti na predaj IstriaČasto kladené otázky
Aké sú prvé kroky pri kúpe nehnuteľnosti v Chorvátsku?
Aké sú všetky náklady spojené s kúpou nehnuteľnosti?
Okrem ceny samotnej nehnuteľnosti nesie kupujúci aj dodatočné náklady ako:
- Daň z prevodu nehnuteľností – 3% z trhovej hodnoty (okrem novostavieb s DPH)
- Provízia agentúry – zvyčajne 2-3% + DPH (zahŕňa právnu kontrolu a poradenstvo)
- Notárske poplatky – za overenie podpisov a notársku úschovu zmluvy
- Náklady na zápis do katastra nehnuteľností
- Bankové poplatky (ak kupujete na úver)
Regent vám vopred pripraví podrobný odhad všetkých nákladov, aby ste si mohli naplánovať rozpočet bez prekvapení.







































































