


Загреб, Максимир Костаньевец - Семейный дом на три этажа
Город Загреб, Максимир, Remete
770,000 €
Основная информация
Описание
Расположенный в тихой части Ремета, на тихой улице и недалеко от известного парка Максимир, этот семейный дом простирается на трех этажах общей площадью 198 м² на участке 380 м².
Планировка по этажам:
Цокольный этаж: Прихожая, кладовая/машинное отделение, ванная комната с туалетом, кабинет, гостиная, столовая, кухня, терраса, двор
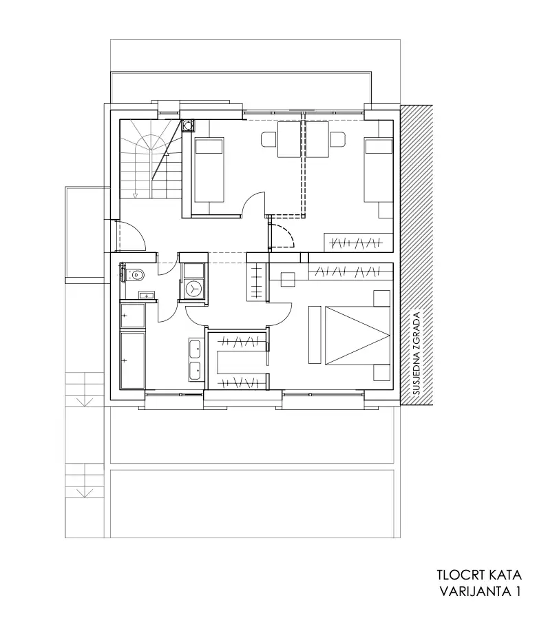
1 этаж: Коридор, балкон, прачечная, ванная комната, комната с гардеробной, комната с балконом
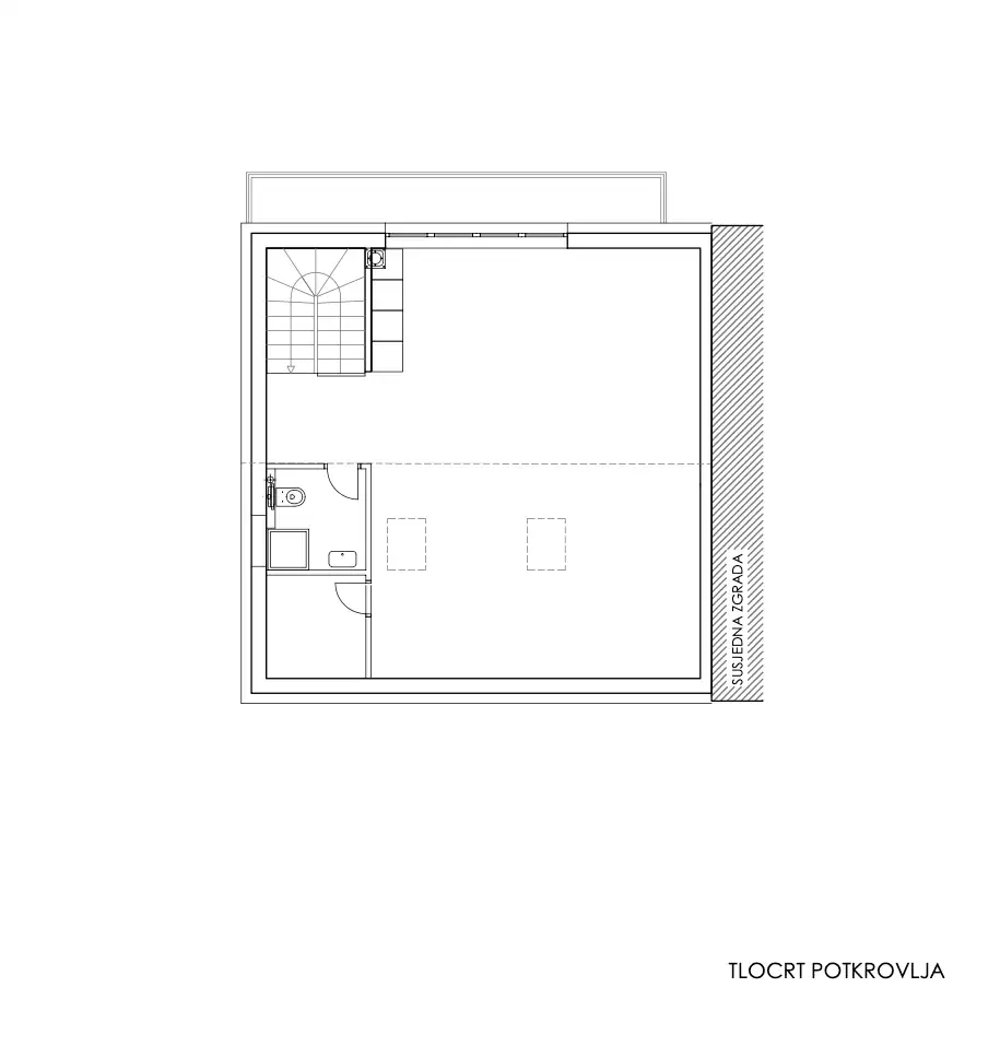
Этаж/мансарда: коридор, ванная комната, открытое пространство, комната
Оснащение дома и территории:
Кухня Dankuchen, встроенная техника Bosch: холодильник, духовка, газовая плита, конденсационный котел Bosch, радиаторы Buderus, смесители Hansgrohe, раковины Laufen, унитазы Villeroy Boch, кондиционеры Toshiba, электровыключатели и розетки Vimar, столярные изделия Rehau, мансардные окна Velux, трехслойный паркет дуб, встроенные шкафы, оптический интернет, охранная сигнализация с датчиками Bosch, видеонаблюдение территории, автоматические раздвижные ворота во двор, противовзломная входная дверь Assa Abloy, освещенная территория, крытая парковка, две внешние кладовые, летняя кухня, баскетбольная площадка 9х6м, дворовые плиты Semmelrock – термофасад Haering с изоляцией 12см.
Недвижимость находится в отличном месте, рядом со всеми ключевыми объектами:
Магазин: 110 мДетский сад Bukovac: 170 мАптека: 210 мПарк Максимир: 2,5 км (5 минут езды)KBC Rebro: 2,7 км (5 минут езды)Автобус: 100 м
Этот дом – отличная возможность для тех, кто ищет место для семьи рядом с природой, а также в хорошо связанном месте со всем необходимым содержанием поблизости.
За любой дополнительной информацией обращайтесь к нам!
Детали недвижимости
План этажа



Найти на карте
Онлайн-калькулятор кредита
Рассчитайте ежемесячный платеж по кредиту.
Кредитный калькулятор
Ежемесячный платеж
Общая сумма кредита
Энергетический класс
Общий индекс энергетической эффективности
Вам также может понравиться
Посмотреть всеИсследуйте другие места
Мы связываем вас с проверенными объектами недвижимости раньше всех
Популярные запросы
Популярные локации
Недвижимость в Загребе Недвижимость в Сплите Недвижимость в Задаре Недвижимость в Риеке Недвижимость в Осиеке Недвижимость в Дубровнике Недвижимость в Пуле Недвижимость в Шибенике Недвижимость в Вараждине Недвижимость в Карловаце Недвижимость в Макарске Недвижимость в ТрогиреПопулярные категории
Квартиры на продажу Дома на продажу Виллы на продажу Квартиры на продажу Квартиры в аренду Дома в аренду Виллы в аренду Квартиры в аренду Земельные участки под застройку Сельскохозяйственные земли Коммерческие помещения Элитная недвижимостьКатегории по локации
Квартиры Загреб Квартиры Сплит Квартиры Риека Дома Задар Виллы Хвар Квартирные единицы Ровинь Квартиры Пула Дома Загреб Дома Сплит Дома Дубровник Дома Риека Виллы БрачРасширенный поиск
Квартиры на продажу Загреб Недвижимость на продажу Загреб Недвижимость на продажу Сплит Недвижимость на продажу Истрия Недвижимость на продажу Дубровник Дома на продажу Загреб Квартиры в аренду Загреб Квартиры на продажу Сплит Дома на продажу Сплит Квартирные единицы на продажу Сплит Квартиры в аренду Сплит Квартирные единицы на продажу ЗадарПопулярные локации
Недвижимость в Загребе Недвижимость в Сплите Недвижимость в Задаре Недвижимость в РиекеПопулярные категории
Квартиры на продажу Дома на продажу Виллы на продажу Квартиры на продажуКатегории по локации
Квартиры Загреб Квартиры Сплит Квартиры Риека Дома ЗадарРасширенный поиск
Квартиры на продажу Загреб Недвижимость на продажу Загреб Недвижимость на продажу Сплит Недвижимость на продажу ИстрияЧасто задаваемые вопросы
Каковы первые шаги при покупке недвижимости в Хорватии?
Каковы все расходы, связанные с покупкой недвижимости?
Помимо цены самой недвижимости, покупатель также несет дополнительные расходы, такие как:
- Налог на передачу недвижимости – 3% от рыночной стоимости (кроме новостроек с НДС)
- Агентская комиссия – обычно 2-3% + НДС (включает юридическую проверку и консультирование)
- Нотариальные сборы – за заверение подписей и нотариальное удостоверение договора
- Расходы на регистрацию в земельном кадастре
- Банковские расходы (если вы покупаете в кредит)
Regent заранее подготовит подробную смету всех расходов, чтобы вы могли планировать свой бюджет без сюрпризов.













































































