


Омиш, Брзет - Двухкомнатная квартира с балконом и террасой в первом ряду у моря
Сплитско-Далматинская, Омиш, Omiš
По запросу
Основная информация
Описание
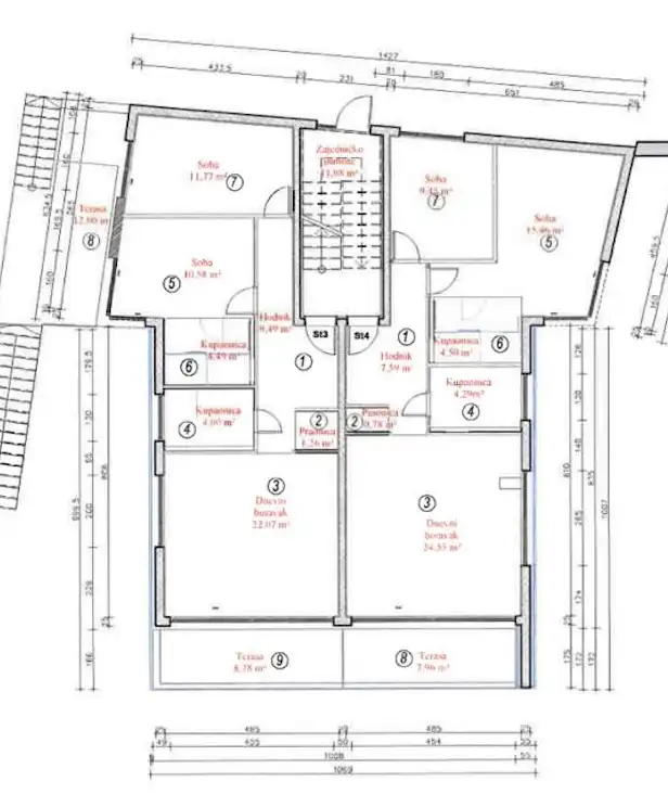
Квартира общей площадью 63,66 м² расположена на первом жилом этаже современного здания в тихой части Омиша в первом ряду от моря.
Две спальни, две ванные комнаты и большие открытые пространства делают ее отличным выбором для семей, покупателей, желающих комфортный дом на побережье, и инвесторов, ищущих стабильную недвижимость для туристической аренды.
Внутренняя планировка включает в себя коридор, открытую гостиную с кухней и столовой, две отдельные спальни и две ванные комнаты. Внешняя часть состоит из балкона площадью 8,78 м² и дополнительной террасы 12 м², идеально подходящих для отдыха и пребывания на открытом воздухе в теплые месяцы.
Интерьер спроектирован с акцентом на свет и воздушность, с использованием современных отделочных деталей и качественных материалов. Большие стеклянные стены соединяют гостиную с открытым пространством и создают приятную, естественно освещенную целостность.
Расположение тихое, благоустроенное и практичное для жизни. Пляжи, пешеходные дорожки, магазины и рестораны находятся поблизости, а Сплит и Макарска легко доступны благодаря хорошей транспортной доступности. Окружение предлагает баланс между спокойной средиземноморской жизнью и близостью ко всему необходимому для повседневной жизни.
Здание полностью завершено, одобрено и разделено на этажи, что позволяет покупателям совершить безопасную и понятную куплю-продажу. Квартиры такого качества в таких местах редко появляются на рынке, что делает эту недвижимость надежной долгосрочной инвестицией.
Цена составляет 720 000 евро с включенным гаражным парковочным местом, или 700 000 евро без гаражного места.
Для получения дополнительной информации или договоренности об осмотре мы в вашем распоряжении.
Детали недвижимости
План этажа

Найти на карте
Онлайн-калькулятор кредита
Рассчитайте ежемесячный платеж по кредиту.
Кредитный калькулятор
Ежемесячный платеж
Общая сумма кредита
Энергетический класс
Общий индекс энергетической эффективности
Вам также может понравиться
Посмотреть всеИсследуйте другие места
Мы связываем вас с проверенными объектами недвижимости раньше всех
Популярные запросы
Популярные локации
Недвижимость в Загребе Недвижимость в Сплите Недвижимость в Задаре Недвижимость в Риеке Недвижимость в Осиеке Недвижимость в Дубровнике Недвижимость в Пуле Недвижимость в Шибенике Недвижимость в Вараждине Недвижимость в Карловаце Недвижимость в Макарске Недвижимость в ТрогиреПопулярные категории
Квартиры на продажу Дома на продажу Виллы на продажу Квартиры на продажу Квартиры в аренду Дома в аренду Виллы в аренду Квартиры в аренду Земельные участки под застройку Сельскохозяйственные земли Коммерческие помещения Элитная недвижимостьКатегории по локации
Квартиры Загреб Квартиры Сплит Квартиры Риека Дома Задар Виллы Хвар Квартирные единицы Ровинь Квартиры Пула Дома Загреб Дома Сплит Дома Дубровник Дома Риека Виллы БрачРасширенный поиск
Квартиры на продажу Загреб Недвижимость на продажу Загреб Недвижимость на продажу Сплит Недвижимость на продажу Истрия Недвижимость на продажу Дубровник Дома на продажу Загреб Квартиры в аренду Загреб Квартиры на продажу Сплит Дома на продажу Сплит Квартирные единицы на продажу Сплит Квартиры в аренду Сплит Квартирные единицы на продажу ЗадарПопулярные локации
Недвижимость в Загребе Недвижимость в Сплите Недвижимость в Задаре Недвижимость в РиекеПопулярные категории
Квартиры на продажу Дома на продажу Виллы на продажу Квартиры на продажуКатегории по локации
Квартиры Загреб Квартиры Сплит Квартиры Риека Дома ЗадарРасширенный поиск
Квартиры на продажу Загреб Недвижимость на продажу Загреб Недвижимость на продажу Сплит Недвижимость на продажу ИстрияЧасто задаваемые вопросы
Каковы первые шаги при покупке недвижимости в Хорватии?
Каковы все расходы, связанные с покупкой недвижимости?
Помимо цены самой недвижимости, покупатель также несет дополнительные расходы, такие как:
- Налог на передачу недвижимости – 3% от рыночной стоимости (кроме новостроек с НДС)
- Агентская комиссия – обычно 2-3% + НДС (включает юридическую проверку и консультирование)
- Нотариальные сборы – за заверение подписей и нотариальное удостоверение договора
- Расходы на регистрацию в земельном кадастре
- Банковские расходы (если вы покупаете в кредит)
Regent заранее подготовит подробную смету всех расходов, чтобы вы могли планировать свой бюджет без сюрпризов.























