


Zagabria, Trešnjevka - ampio locale commerciale su due livelli con parcheggio
Città di Zagabria, Trešnjevka - Nord, Trešnjevka
2,265 €
Informazioni chiave
Descrizione
Questo spazio commerciale su due piani, situato al piano terra, si trova in una posizione eccellente in una zona tranquilla di Trešnjevka. Lo spazio si trova in un edificio più recente ed è ideale per le aziende che cercano uno spazio di lavoro moderno, funzionale ed efficiente dal punto di vista energetico.
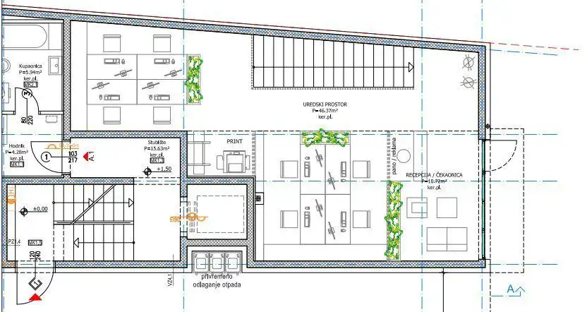
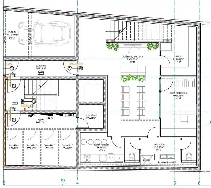
Lo spazio commerciale ha una superficie netta totale di 145 m², ed è composto da un piano terra di 63,65 m² e un seminterrato di 81,98 m² che offre spazio di lavoro o di stoccaggio aggiuntivo. Viene affittato non arredato, il che consente l'adattamento alle esigenze aziendali. È dotato di un sistema di riscaldamento e raffreddamento DAIKIN e di ventilazione centralizzata con recupero di calore, che garantisce un clima confortevole tutto l'anno. Lo spazio ha un certificato energetico A+ ed è disponibile anche una rete Internet in fibra ottica con una connessione HT esistente.
Il noleggio include anche due posti auto esterni.
La proprietà si trova in una zona tranquilla e ben collegata di Trešnjevka, con facile accesso alle principali strade e zone commerciali. Nelle vicinanze si trovano tutti i servizi necessari per le attività quotidiane, tra cui negozi, ristoranti e trasporti pubblici.
L'edificio è di nuova costruzione, lo spazio non è stato utilizzato prima ed è immediatamente pronto per l'affitto. La durata minima del contratto è di 12 mesi, con un deposito pari a un canone mensile.
Per maggiori informazioni o per fissare un appuntamento per la visione, non esitare a contattarci.
Dettagli dell'immobile
Planimetria


Trova sulla mappa
Calcolatore di prestito online
Calcola la tua rata mensile del prestito.
Calcolatore di prestito
Rata mensile
Importo totale del prestito
Classe energetica
Indice di Prestazione Energetica Globale
Potrebbe piacerti anche
Vedi tuttoEsplora altre località
Ti mettiamo in contatto con immobili verificati prima di chiunque altro
Ricerche popolari
Località popolari
Immobili Zagabria Immobili Spalato Immobili Zara Immobili Fiume Immobili Osijek Immobili Dubrovnik Immobili Pola Immobili Sebenico Immobili Varaždin Immobili Karlovac Immobili Makarska Immobili TraùCategorie popolari
Appartamenti in vendita Case in vendita Ville in vendita Unità abitative in vendita Appartamenti in affitto Case in affitto Ville in affitto Unità abitative in affitto Terreni edificabili Terreni agricoli Locali commerciali Immobili di lussoCategorie per località
Appartamenti Zagabria Appartamenti Spalato Appartamenti Fiume Case Zara Ville Hvar Unità abitative Rovigno Appartamenti Pola Case Zagabria Case Spalato Case Dubrovnik Case Fiume Ville BračRicerca avanzata
Vendita appartamenti Zagabria Vendita immobili Zagabria Vendita immobili Spalato Vendita immobili Istria Vendita immobili Dubrovnik Vendita case Zagabria Affitto appartamenti Zagabria Vendita appartamenti Spalato Vendita case Spalato Vendita unità abitative Spalato Affitto appartamenti Spalato Vendita unità abitative ZaraLocalità popolari
Immobili Zagabria Immobili Spalato Immobili Zara Immobili FiumeCategorie popolari
Appartamenti in vendita Case in vendita Ville in vendita Unità abitative in venditaCategorie per località
Appartamenti Zagabria Appartamenti Spalato Appartamenti Fiume Case ZaraRicerca avanzata
Vendita appartamenti Zagabria Vendita immobili Zagabria Vendita immobili Spalato Vendita immobili IstriaDomande Frequenti
Come posso trovare l'immobile ideale in affitto?
Quali tipi di affitti sono disponibili in Croazia?
In Croazia, distinguiamo diversi tipi di affitti, a seconda delle tue esigenze:
- Affitto a lungo termine - ideale per famiglie, coppie e professionisti che cercano stabilità e spazio abitativo per un periodo più lungo (solitamente 12+ mesi)
- Affitto a breve termine - destinato a lavoratori stagionali, studenti o soggiorni temporanei (1-6 mesi)
- Affitto turistico - affitto al giorno o alla settimana, spesso durante l'estate
- Affitto commerciale - spazi per uffici, cliniche, negozi, ecc.
Regent media in tutti i tipi di affitti e offre supporto nella scelta del modello più adatto a seconda della tua situazione di vita o delle tue esigenze aziendali.
Cosa include il prezzo dell'affitto?
È richiesta una cauzione per l'affitto?
Come si svolge il processo di conclusione di un contratto di locazione?
Il processo include i seguenti passaggi:
- Visita e selezione dell'immobile
- Accordo sulle condizioni (prezzo, durata, utenze, obblighi)
- Preparazione del contratto di locazione - preparato dalla nostra agenzia o da un avvocato
- Firma del contratto tra proprietario e inquilino
- Pagamento della cauzione e del primo affitto
- Consegna delle chiavi e registrazione delle condizioni dell'immobile
Se lo si desidera, il contratto può essere autenticato da un notaio. Inoltre, per gli inquilini stranieri o per la registrazione della residenza, il contratto deve essere registrato presso il Ministero degli Interni (MUP). Il nostro team gestisce l'intero processo e garantisce che tutti gli aspetti siano legalmente coperti.
Cos'è la solennizzazione di un contratto di locazione?
La solennizzazione è una procedura di certificazione giudiziaria o notarile di un contratto privato, con la quale il contratto acquisisce la forza di un titolo esecutivo, il che significa che può essere direttamente eseguito (ad es. sfratto, recupero crediti) senza una precedente procedura giudiziaria.
Nella locazione, la solennizzazione è raccomandata quando:
- Il proprietario desidera una protezione legale aggiuntiva - ad es. se l'inquilino non paga l'affitto o si rifiuta di andarsene
- L'inquilino desidera la prova che il contratto è legale - ad es. per la registrazione della residenza, la registrazione presso un datore di lavoro, una banca, ecc.
- Per le locazioni a lungo termine, in particolare per locali commerciali o appartamenti più grandi, la solennizzazione protegge entrambe le parti




























