


Trogir, Sevid - Appartement de luxe sur deux niveaux avec piscine
Split-Dalmatie, Marine, Vinišće
800,000 €
Informations clés
Description du bien
Dans un quartier calme du village de Sevid na Moru, au sein d'une nouvelle construction exclusive comprenant trois unités résidentielles, se trouve l'appartement S2 en duplex, s'étendant sur le rez-de-chaussée et le premier étage. Grâce à son agencement soigneusement conçu, à un équipement de haut standing, à une piscine privée et à une vue imprenable sur la mer, ce bien représente un excellent choix pour les acheteurs à la recherche d'un confort supérieur dans un environnement méditerranéen paisible.
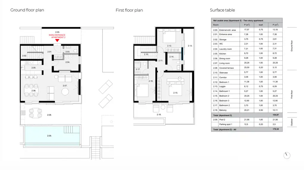
La superficie nette totale de l'appartement est de 154,87 m². Au rez-de-chaussée, vous trouverez un hall d'entrée, un débarras, des toilettes invités, une buanderie, une cuisine, une salle à manger et un salon spacieux de 20,25 m². L'espace de vie est relié à une terrasse couverte de 25,50 m², créant un espace de vie extérieur supplémentaire et un plaisir quotidien de l'ambiance méditerranéenne. Un escalier intérieur mène au premier étage où se trouvent un couloir, trois chambres et deux salles de bains. À l'étage supérieur, une loggia de 8,12 m² et un balcon spacieux de 20,21 m² ajoutent une valeur supplémentaire à l'espace. L'appartement comprend également une piscine privée de 21,95 m² et une place de parking extérieure. Toutes les pièces bénéficient du chauffage et de la climatisation par le sol, de volets électriques intégrés et d'un système de porte intelligente, tandis que la combinaison de parquet et de carrelage souligne davantage le standard de finition contemporain. L'appartement sera équipé d'appareils électroménagers et de sanitaires complets dans les salles de bains.
Sevid est connu comme un lieu côtier calme qui offre intimité et ambiance méditerranéenne authentique, tout en permettant un accès facile à toutes les commodités nécessaires pour un séjour agréable. Les plages aménagées, les restaurants et la marina se trouvent à proximité, tandis que Trogir et Split sont facilement accessibles en voiture, ce qui rend cet emplacement attrayant à la fois pour un usage privé et pour un investissement.
Le projet est conçu comme une nouvelle construction luxueuse de petite taille, mettant l'accent sur l'intimité, la qualité de construction et le mode de vie contemporain. L'achèvement de la construction est prévu pour 2028, avec des paiements possibles par phases de construction.
Pour plus d'informations et pour organiser une visite, n'hésitez pas à nous contacter.
Détails du bien
Plan

Trouver le bien sur la carte
Calculateur de prêt en ligne
Calculez votre mensualité de prêt.
Calculateur de prêt
Mensualité
Montant total du prêt
Classe énergétique
Indice énergétique global
Ceci pourrait vous plaire
Voir toutExplorer plus de lieux
Nous vous connectons aux biens vérifiés avant tout le monde
Recherches populaires
Localites populaires
Biens immobiliers Zagreb Biens immobiliers Split Biens immobiliers Zadar Biens immobiliers Rijeka Biens immobiliers Osijek Biens immobiliers Dubrovnik Biens immobiliers Pula Biens immobiliers Šibenik Biens immobiliers Varaždin Biens immobiliers Karlovac Biens immobiliers Makarska Biens immobiliers TrogirCatégories populaires
Appartements à vendre Maisons à vendre Villas à vendre Appartements à vendre Appartements à louer Maisons à louer Villas à louer Appartements à louer Terrains à bâtir Terrains agricoles Locaux commerciaux Biens de luxeCatégories par lieu
Appartements Zagreb Appartements Split Appartements Rijeka Maisons Zadar Villas Hvar Appartements Rovinj Appartements Pula Maisons Zagreb Maisons Split Maisons Dubrovnik Maisons Rijeka Villas BračRecherche avancée
Vente appartements Zagreb Vente biens immobiliers Zagreb Vente biens immobiliers Split Vente biens immobiliers Istrie Vente biens immobiliers Dubrovnik Vente maisons Zagreb Location appartements Zagreb Vente appartements Split Vente maisons Split Vente appartements Split Location appartements Split Vente appartements ZadarLocalites populaires
Biens immobiliers Zagreb Biens immobiliers Split Biens immobiliers Zadar Biens immobiliers RijekaCatégories populaires
Appartements à vendre Maisons à vendre Villas à vendre Appartements à vendreCatégories par lieu
Appartements Zagreb Appartements Split Appartements Rijeka Maisons ZadarRecherche avancée
Vente appartements Zagreb Vente biens immobiliers Zagreb Vente biens immobiliers Split Vente biens immobiliers IstrieQuestions fréquemment posées
Quelles sont les premières étapes pour acheter un bien immobilier en Croatie ?
Quels sont tous les coûts liés à l'achat d'un bien immobilier ?
En plus du prix du bien lui-même, l'acheteur doit supporter des coûts supplémentaires tels que :
- Taxe sur les transactions immobilières – 3 % de la valeur marchande (sauf pour les nouvelles constructions avec TVA)
- Commission d'agence – généralement 2–3 % + TVA (incluant la vérification juridique et le conseil)
- Frais de notaire – légalisation de la signature et solennisation du contrat
- Frais d'inscription au registre foncier
- Frais bancaires (si vous achetez par crédit)
Regent vous préparera à l'avance une estimation détaillée de tous les coûts afin que vous puissiez planifier votre budget sans surprises.































































