


Kastela, Kastel Stari - Three-room apartment 109 m2 with balcony NEW CONSTRUCTION
Split-Dalmatia, Kastela, Kaštel Stari
305,200 €
Key information
Description
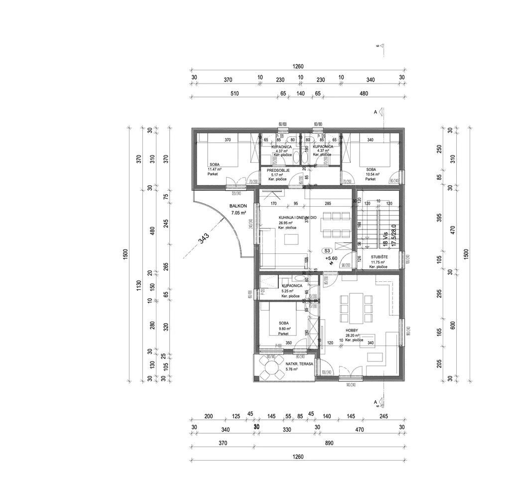
We mediate in the sale of a spacious three-room apartment located in a quiet part of Kaštel Stari. The apartment is located on the ground floor of a smaller residential building, which consists of a basement, ground floor and first floor. The apartment covers 109 m2 and consists of:
- Spacious kitchen, dining room and living room (26.95 m²)
- Entrance hall (5.17 m2)
- First bedroom (11.47 m²) with bathroom (4.47 m2) and balcony (7.05 m2)
- Second bedroom (10.54 m²) with bathroom (4.37 m2)
- Third bedroom (9.80 m2) with bathroom (5.25 m2) and access to the terrace (5.76 m2)
- Relaxation area (28.20 m2)
The apartment comes with one garage parking space, and there is the possibility of buying another one. The location is excellently connected to the main roads, and all important facilities are in the immediate vicinity, including a school, kindergarten and parks. Thanks to the quiet environment and functional layout, the apartment is ideal for family life or as an investment for tourist rental. Possibility of buying with a loan. For more information and to arrange a viewing, feel free to contact us!
Property details
Floor plan

Find on map
Online loan calculator
Calculate your monthly loan payment.
Loan Calculator
Monthly payment
Total loan amount
Energy Class
Global Energy Performance Index
You might also like
See allExplore more locations
We connect you with verified properties before anyone else
Popular searches
Popular locations
Properties Zagreb Properties Split Properties Zadar Properties Rijeka Properties Osijek Properties Dubrovnik Properties Pula Properties Šibenik Properties Varaždin Properties Karlovac Properties Makarska Properties TrogirPopular categories
Apartments for sale Houses for sale Villas for sale Apartment units for sale Apartments for rent Houses for rent Villas for rent Apartment units for rent Building lands Agricultural lands Business premises Luxury propertiesCategories by location
Apartments Zagreb Apartments Split Apartments Rijeka Houses Zadar Villas Hvar Apartment units Rovinj Apartments Pula Houses Zagreb Houses Split Houses Dubrovnik Houses Rijeka Villas BračExpanded search
Apartments sale Zagreb Properties sale Zagreb Properties sale Split Properties sale Istra Properties sale Dubrovnik Houses sale Zagreb Apartments rent Zagreb Apartments sale Split Houses sale Split Apartment units sale Split Apartments rent Split Apartment units sale ZadarPopular locations
Properties Zagreb Properties Split Properties Zadar Properties RijekaPopular categories
Apartments for sale Houses for sale Villas for sale Apartment units for saleCategories by location
Apartments Zagreb Apartments Split Apartments Rijeka Houses ZadarExpanded search
Apartments sale Zagreb Properties sale Zagreb Properties sale Split Properties sale IstraFrequently Asked Questions
What are the first steps when buying real estate in Croatia?
What are all the costs associated with buying real estate?
In addition to the price of the property itself, the buyer also bears additional costs such as:
- Real estate transfer tax – 3% of the market value (except for new construction with VAT)
- Agency commission – usually 2-3% + VAT (includes legal check and consulting)
- Notary fees – for signature verification and solemnization of the contract
- Land registry registration costs
- Bank costs (if you are buying with a loan)
Regent will prepare a detailed estimate of all costs in advance so you can plan your budget without surprises.

































