

Záhřeb, Gajnice - obchodní prostory k pronájmu
Město Záhřeb, Podsused - Vrapče, Gajnice
Na dotaz
Klíčové informace
Popis
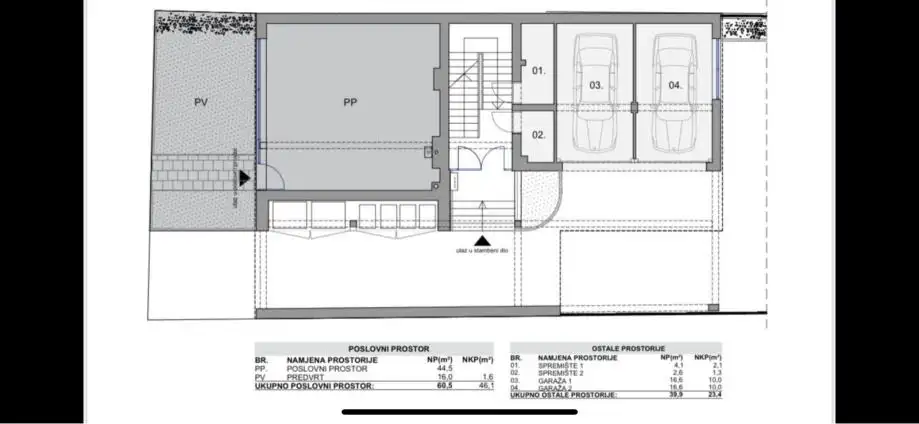
Pronajímá se obchodní prostor o rozloze 46,1 m² s přidruženou zahradou 20 m², umístěný v přízemí novostavby na frekventovaném místě v Gajnicích.
Prostor je ideální pro kancelářské činnosti, salony, ordinace nebo klidné řemeslníky, kteří hledají dobrou viditelnost a dostupnost.
Obchodní prostor má vlastní vchod a dostatek přirozeného světla, což zajišťuje příjemné a profesionální pracovní prostředí. Celková vnitřní plocha je 46,1 m², další hodnotou je zahrada o rozloze 20 m² ve vlastnictví, která umožňuje uspořádání venkovní terasy, umístění zeleně nebo využití pro propagační účely. Prostor má funkční půdorys a je přizpůsobitelný různým činnostem, jako jsou kanceláře, kosmetický nebo kadeřnický salon, ordinace, showroom nebo vzdělávací prostor.
Gajnice jsou jednou z nejrušnějších a dobře propojených západních záhřebských čtvrtí. Poloha v blízkosti Aleje grada Bolonje zajišťuje vysokou frekvenci chodců a vozidel a vynikající viditelnost. V bezprostřední blízkosti se nachází obchodní centrum, veřejná doprava, veřejné parkoviště a řada každodenních zařízení, což toto místo činí mimořádně vhodným pro podnikání.
Prostor se nachází v novostavbě a bude dokončen a obyvatelný do léta 2026. Má samostatné měřidlo energií, což umožňuje úplnou kontrolu nákladů. Cena pronájmu a doba trvání smlouvy jsou definovány dohodou, v závislosti na potřebách nájemce.
Pro další informace, půdorys nebo dohodu o budoucím pronájmu nás neváhejte kontaktovat. Tento obchodní prostor představuje vynikající příležitost pro dlouhodobé podnikání na žádaném místě v západní části Záhřebu.
Detaily nemovitosti
Půdorys

Najít na mapě
Online úvěrová kalkulačka
Vypočítat měsíční splátku úvěru.
Úvěrová kalkulačka
Měsíční splátka
Celková částka úvěru
Energetická třída
Celkový index energetické náročnosti
Mohlo by se vám také líbit
Zobrazit všeProzkoumejte další lokality
Spojíme vás s ověřenými nemovitostmi dříve než kdokoli jiný
Populární vyhledávání
Oblíbená místa
Nemovitosti Záhřeb Nemovitosti Split Nemovitosti Zadar Nemovitosti Rijeka Nemovitosti Osijek Nemovitosti Dubrovník Nemovitosti Pula Nemovitosti Šibenik Nemovitosti Varaždín Nemovitosti Karlovac Nemovitosti Makarska Nemovitosti TrogirPopulární kategorie
Byty na prodej Domy na prodej Vily na prodej Bytové jednotky na prodej Byty k pronájmu Domy k pronájmu Vily k pronájmu Bytové jednotky k pronájmu Stavební pozemky Zemědělské pozemky Komerční prostory Luxusní nemovitostiKategorie podle lokality
Byty Záhřeb Byty Split Byty Rijeka Domy Zadar Vily Hvar Bytové jednotky Rovinj Byty Pula Domy Záhřeb Domy Split Domy Dubrovník Domy Rijeka Vily BračRozšířené vyhledávání
Byty na prodej Záhřeb Nemovitosti na prodej Záhřeb Nemovitosti na prodej Split Nemovitosti na prodej Istrie Nemovitosti na prodej Dubrovník Domy na prodej Záhřeb Byty k pronájmu Záhřeb Byty na prodej Split Domy na prodej Split Bytové jednotky na prodej Split Byty k pronájmu Split Bytové jednotky na prodej ZadarOblíbená místa
Nemovitosti Záhřeb Nemovitosti Split Nemovitosti Zadar Nemovitosti RijekaPopulární kategorie
Byty na prodej Domy na prodej Vily na prodej Bytové jednotky na prodejKategorie podle lokality
Byty Záhřeb Byty Split Byty Rijeka Domy ZadarRozšířené vyhledávání
Byty na prodej Záhřeb Nemovitosti na prodej Záhřeb Nemovitosti na prodej Split Nemovitosti na prodej IstrieČasto kladené otázky
Jak mohu najít ideální nemovitost k pronájmu?
Jaké typy pronájmů jsou k dispozici v Chorvatsku?
V Chorvatsku rozlišujeme několik typů pronájmů, v závislosti na vašich potřebách:
- Dlouhodobý pronájem – ideální pro rodiny, páry a profesionály, kteří hledají stabilitu a životní prostor na delší období (obvykle 12+ měsíců)
- Krátkodobý pronájem – určený pro sezónní pracovníky, studenty nebo dočasné pobyty (1-6 měsíců)
- Turistický pronájem – pronájem na den nebo týden, často během léta
- Obchodní pronájem – prostory pro kanceláře, kliniky, obchody atd.
Regent zprostředkovává všechny typy pronájmů a nabízí podporu při výběru nejvhodnějšího modelu v závislosti na vaší životní situaci nebo obchodních potřebách.
Co zahrnuje cena pronájmu?
Je při pronájmu vyžadována kauce?
Jak vypadá proces uzavření nájemní smlouvy?
Proces zahrnuje následující kroky:
- Prohlídka a výběr nemovitosti
- Dohoda o podmínkách (cena, doba trvání, energie, povinnosti)
- Příprava nájemní smlouvy – připravené naší agenturou nebo právníkem
- Podpis smlouvy mezi vlastníkem a nájemcem
- Zaplacení kauce a prvního nájemného
- Předání klíčů a zaznamenání stavu nemovitosti
V případě zájmu lze smlouvu notářsky ověřit. Pro zahraniční nájemce nebo registraci pobytu musí být smlouva registrována u Ministerstva vnitra (MUP). Náš tým řídí celý proces a zajišťuje, aby byly všechny aspekty právně pokryty.
Co je notářské ověření nájemní smlouvy?
Solemnizace je postup soudního nebo notářského ověření soukromé smlouvy, čímž smlouva získává sílu vykonatelného dokumentu – což znamená, že může být přímo vykonána (např. vystěhování, vymáhání dluhů) bez předchozího soudního řízení.
V pronájmu se solemnizace doporučuje, když:
- Vlastník chce dodatečnou právní ochranu – např. pokud nájemce neplatí nájem nebo odmítá se vystěhovat
- Nájemce chce důkaz, že smlouva je legální – např. pro registraci pobytu, registraci u zaměstnavatele, banky atd.
- Pro dlouhodobé pronájmy, zejména pro obchodní prostory nebo větší byty, solemnizace chrání obě strany











