


Záhřeb, Centrum - Prostorný obchodní prostor
Město Záhřeb, Dolní Město, Donji grad
6,500 €
Klíčové informace
Popis
Záhřeb, Centar – Prostorný obchodní prostor 240 m² k pronájmu
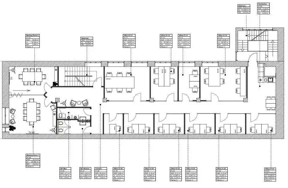
V prvním patře udržované obchodní budovy, v bezprostřední blízkosti mešity, se nachází funkční obchodní prostor o celkové ploše 240,6 m². Prostor je ideální pro kanceláře, vzdělávací centrum, konzultační činnosti nebo větší společnosti, které hledají reprezentativní lokalitu v centru města.
Skládá se ze dvou větších prostor pro schůzky (26,16 m² a 19,08 m²), čtrnácti kanceláří různých ploch, kuchyně, chodby a oddělených sociálních zařízení pro muže a ženy. Všechny místnosti jsou klimatizované a mají připojení k internetu.
Prostor je možné přizpůsobit potřebám budoucího nájemce, což ho činí ideálním pro společnosti, které si chtějí zařídit pracovní prostředí podle vlastní vize.
Budova má řádně udržované společné prostory a v blízkosti se nachází veřejná doprava, restaurace, kavárny a obchody. Lokalita zajišťuje snadný přístup a dobré dopravní spojení se zbytkem města.
K dispozici k pronájmu od 1. ledna 2026.
Detaily nemovitosti
Půdorys

Najít na mapě
Online úvěrová kalkulačka
Vypočítat měsíční splátku úvěru.
Úvěrová kalkulačka
Měsíční splátka
Celková částka úvěru
Energetická třída
Celkový index energetické náročnosti
Mohlo by se vám také líbit
Zobrazit všeProzkoumejte další lokality
Spojíme vás s ověřenými nemovitostmi dříve než kdokoli jiný
Populární vyhledávání
Oblíbená místa
Nemovitosti Záhřeb Nemovitosti Split Nemovitosti Zadar Nemovitosti Rijeka Nemovitosti Osijek Nemovitosti Dubrovník Nemovitosti Pula Nemovitosti Šibenik Nemovitosti Varaždín Nemovitosti Karlovac Nemovitosti Makarska Nemovitosti TrogirPopulární kategorie
Byty na prodej Domy na prodej Vily na prodej Bytové jednotky na prodej Byty k pronájmu Domy k pronájmu Vily k pronájmu Bytové jednotky k pronájmu Stavební pozemky Zemědělské pozemky Komerční prostory Luxusní nemovitostiKategorie podle lokality
Byty Záhřeb Byty Split Byty Rijeka Domy Zadar Vily Hvar Bytové jednotky Rovinj Byty Pula Domy Záhřeb Domy Split Domy Dubrovník Domy Rijeka Vily BračRozšířené vyhledávání
Byty na prodej Záhřeb Nemovitosti na prodej Záhřeb Nemovitosti na prodej Split Nemovitosti na prodej Istrie Nemovitosti na prodej Dubrovník Domy na prodej Záhřeb Byty k pronájmu Záhřeb Byty na prodej Split Domy na prodej Split Bytové jednotky na prodej Split Byty k pronájmu Split Bytové jednotky na prodej ZadarOblíbená místa
Nemovitosti Záhřeb Nemovitosti Split Nemovitosti Zadar Nemovitosti RijekaPopulární kategorie
Byty na prodej Domy na prodej Vily na prodej Bytové jednotky na prodejKategorie podle lokality
Byty Záhřeb Byty Split Byty Rijeka Domy ZadarRozšířené vyhledávání
Byty na prodej Záhřeb Nemovitosti na prodej Záhřeb Nemovitosti na prodej Split Nemovitosti na prodej IstrieČasto kladené otázky
Jak mohu najít ideální nemovitost k pronájmu?
Jaké typy pronájmů jsou k dispozici v Chorvatsku?
V Chorvatsku rozlišujeme několik typů pronájmů, v závislosti na vašich potřebách:
- Dlouhodobý pronájem – ideální pro rodiny, páry a profesionály, kteří hledají stabilitu a životní prostor na delší období (obvykle 12+ měsíců)
- Krátkodobý pronájem – určený pro sezónní pracovníky, studenty nebo dočasné pobyty (1-6 měsíců)
- Turistický pronájem – pronájem na den nebo týden, často během léta
- Obchodní pronájem – prostory pro kanceláře, kliniky, obchody atd.
Regent zprostředkovává všechny typy pronájmů a nabízí podporu při výběru nejvhodnějšího modelu v závislosti na vaší životní situaci nebo obchodních potřebách.
Co zahrnuje cena pronájmu?
Je při pronájmu vyžadována kauce?
Jak vypadá proces uzavření nájemní smlouvy?
Proces zahrnuje následující kroky:
- Prohlídka a výběr nemovitosti
- Dohoda o podmínkách (cena, doba trvání, energie, povinnosti)
- Příprava nájemní smlouvy – připravené naší agenturou nebo právníkem
- Podpis smlouvy mezi vlastníkem a nájemcem
- Zaplacení kauce a prvního nájemného
- Předání klíčů a zaznamenání stavu nemovitosti
V případě zájmu lze smlouvu notářsky ověřit. Pro zahraniční nájemce nebo registraci pobytu musí být smlouva registrována u Ministerstva vnitra (MUP). Náš tým řídí celý proces a zajišťuje, aby byly všechny aspekty právně pokryty.
Co je notářské ověření nájemní smlouvy?
Solemnizace je postup soudního nebo notářského ověření soukromé smlouvy, čímž smlouva získává sílu vykonatelného dokumentu – což znamená, že může být přímo vykonána (např. vystěhování, vymáhání dluhů) bez předchozího soudního řízení.
V pronájmu se solemnizace doporučuje, když:
- Vlastník chce dodatečnou právní ochranu – např. pokud nájemce neplatí nájem nebo odmítá se vystěhovat
- Nájemce chce důkaz, že smlouva je legální – např. pro registraci pobytu, registraci u zaměstnavatele, banky atd.
- Pro dlouhodobé pronájmy, zejména pro obchodní prostory nebo větší byty, solemnizace chrání obě strany































