

Podstrana - Trisobno stanovanje z vrtom, bazenom in pogledom na morje
Splitsko-dalmatinska, Podstrana, Podstrana
232,877 €
Ključne informacije
Opis
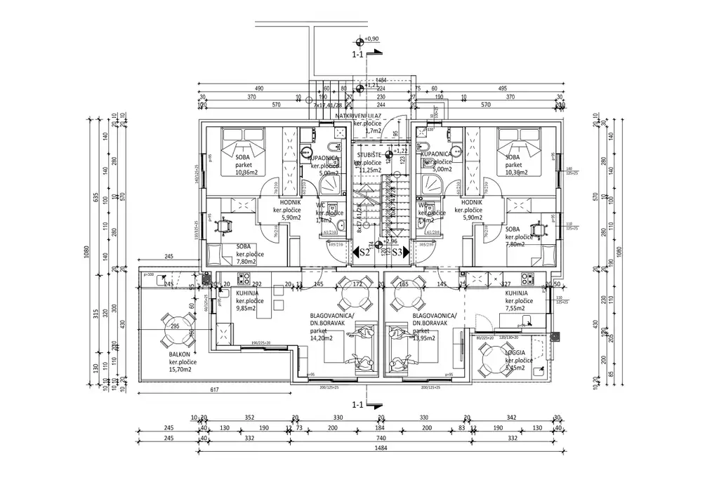
Stan S1 se nahaja v pritličju manjše stanovanjske stavbe Belview Podstrana, površine 87,75 m². Sestavljen je iz prostorne dnevne sobe s kuhinjo in jedilnico površine 29,20 m², treh spalnic, kopalnice, dodatnega WC-ja in hodnika. Iz dnevnega dela se izhaja na dve pokriti terasi skupne površine 4,30 m², ki nudita miren prostor za sprostitev in pogled na morje.
Stan obiluje z naravno svetlobo zahvaljujoč orientaciji jug–vzhod / jug–zahod, notranjost pa je zasnovana s poudarkom na funkcionalnosti in udobju. Pri gradnji so bili uporabljeni vrhunski materiali – večslojna parket, keramika prve klase, PVC stavbno pohištvo s troslojnim steklom in protivlomna vrata. Kopalnica ima električno talno gretje, stanovanje je v celoti klimatizirano.
Stavba je izvedena v armiranobetonski konstrukciji z izolacijo iz kamene volne (10 cm) in silikonskim zaključnim slojem fasade. Stanovanju pripada zunanje parkirno mesto, medtem ko klet z naravno svetlobo in inštalacijami (voda, elektrika, kanalizacija) zagotavlja dodaten prostor za shrambo.
Zahvaljujoč majhnemu številu stanovanj, novi infrastrukturi in bližini morja, je stanovanje S1 popolna izbira za družinsko življenje ali kot mirno mediteransko zatočišče s pogledom na Jadran.
Za več informacij, kot tudi dogovor o ogledu, nas kontaktirajte!
Podrobnosti nepremičnine
Tloris

Poišči na zemljevidu
Spletni kalkulator kredita
Izračunajte svoj mesečni obrok kredita.
Kalkulator kredita
Mesečni obrok
Skupni znesek kredita
Energetski razred
Globalni indeks energetske učinkovitosti
Morda vam bo všeč tudi
Prikaži vseRaziščite več lokacij
Povezujemo vas s preverjenimi nepremičninami pred vsemi drugimi
Priljubljena iskanja
Priljubljene lokacije
Nepremičnine Zagreb Nepremičnine Split Nepremičnine Zadar Nepremičnine Reka Nepremičnine Osijek Nepremičnine Dubrovnik Nepremičnine Pula Nepremičnine Šibenik Nepremičnine Varaždin Nepremičnine Karlovac Nepremičnine Makarska Nepremičnine TrogirPriljubljene kategorije
Stanovanja za prodajo Hiše za prodajo Vile za prodajo Stanovanja za prodajo Stanovanja za najem Hiše za najem Vile za najem Stanovanja za najem Gradbena zemljišča Kmetijska zemljišča Poslovni prostori Luksuzne nepremičnineKategorije po lokaciji
Stanovanja Zagreb Stanovanja Split Stanovanja Reka Hiše Zadar Vile Hvar Stanovanjske enote Rovinj Stanovanja Pula Hiše Zagreb Hiše Split Hiše Dubrovnik Hiše Reka Vile BračRazširjeno iskanje
Prodaja stanovanj Zagreb Prodaja nepremičnin Zagreb Prodaja nepremičnin Split Prodaja nepremičnin Istra Prodaja nepremičnin Dubrovnik Prodaja hiš Zagreb Najem stanovanj Zagreb Prodaja stanovanj Split Prodaja hiš Split Prodaja stanovanj Split Najem stanovanj Split Prodaja stanovanj ZadarPriljubljene lokacije
Nepremičnine Zagreb Nepremičnine Split Nepremičnine Zadar Nepremičnine RekaPriljubljene kategorije
Stanovanja za prodajo Hiše za prodajo Vile za prodajo Stanovanja za prodajoKategorije po lokaciji
Stanovanja Zagreb Stanovanja Split Stanovanja Reka Hiše ZadarRazširjeno iskanje
Prodaja stanovanj Zagreb Prodaja nepremičnin Zagreb Prodaja nepremičnin Split Prodaja nepremičnin IstraPogosto zastavljena vprašanja
Kakšni so prvi koraki pri nakupu nepremičnine na Hrvaškem?
Kakšni so vsi stroški, povezani z nakupom nepremičnine?
Poleg cene same nepremičnine kupec krije tudi dodatne stroške, kot so:
- Davek na promet nepremičnin – 3 % tržne vrednosti (razen za novogradnje z DDV)
- Agencijska provizija – običajno 2-3 % + DDV (vključuje pravni pregled in svetovanje)
- Notarski stroški – za overitev podpisov in overitev pogodbe
- Stroški vpisa v zemljiško knjigo
- Bančni stroški (če kupujete s kreditom)
Regent vam bo vnaprej pripravil podrobno oceno vseh stroškov, da boste lahko brez presenečenj načrtovali svoj proračun.






































































































