
Split, Visoka - Jednosoban stan sa loggiom i balkonom
Splitsko-dalmatinska, Split, Visoka
286,000 €
Ključne informacije
Opis nekretnine
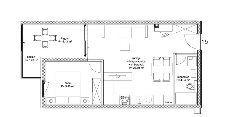
Stan A15 nalazi se na drugom katu novogradnje na Visokoj i predstavlja moderan jednosobni stan s dva vanjska prostora koji pružaju dodatnu vrijednost svakodnevnom boravku. Unutarnji raspored čini otvoreni dnevni boravak s kuhinjom i blagovaonicom površine 26,69 m², kupaonica od 4,34 m² te spavaća soba površine 9,45 m². Iz dnevnog prostora pruža se izlaz na loggiu od 5,43 m², dok se uz to nalazi i balkon površine 3,70 m², što stanu daje ugodan izbor vanjskih sadržaja u različitim dijelovima dana. Ukupna površina stana iznosi 49,60 m².
Arhitektonski koncept temelji se na dva usklađena volumena iznad zajedničke podzemne garaže. Eksterijer kombinira travertin fasadu, prozirne staklene ograde, drvene klizne rolete i tamne otvore, stvarajući suvremen i profinjen vizualni identitet. Uređeni pristupi, kontrolirana hortikultura, ambijentalna LED rasvjeta i vanjski video nadzor dodatno podižu razinu estetike i sigurnosti u cijelom projektu.
Stanovi su projektirani s naglaskom na funkcionalnost, prirodno osvjetljenje i premium materijale. Opremljeni su talijanskim pločicama prve klase, troslojnim hrastovim parketom, kvalitetnom sanitarnom opremom, WC školjkama Villeroy & Boch s soft-close sustavom, podnim grijanjem u kupaonicama te modernim sobnim vratima sa skrivenim britvelama i magnetnim bravama. Ugrađena su protuprovalna i protupožarna vrata (42 dB), troslojna stakla na otvorima i video parlafon u boji, dok ambijentalna LED rasvjeta upotpunjuje suvremeni izgled interijera.
Projekt je pažljivo oblikovan kao spoj suvremene arhitekture i mirnog obiteljskog okruženja. Smješten je u uređenoj ulici koja kombinira privatnost i svakodnevnu praktičnost, s blizinom škole, vrtića, trgovina i sportskih sadržaja. Jednostavan pristup glavnim prometnicama omogućuje ugodno kretanje prema svim dijelovima grada, dok uzdignuti položaj lokacije otvara ugodne poglede prema moru, otocima i Marjanu.
Rok završetka projekta je planiran za kraj 2027. godine.
Plaćanje po dogovoru.
Garažno parkirno mjesto iznosi 35.000 EUR.
Za više informacija, kao i dogovor o razgledavanju, slobodno nas kontaktirajte!
Detalji o nekretnini
Tlocrt

Pronađite nekretninu na karti
Online kreditni kalkulator
Izračunajte svoju mjesečnu ratu kredita.
Kreditni kalkulator
Mjesečna rata
Ukupni iznos kredita
Energetski razred
Globalni energetski indeks
Nešto što bi vam se moglo svidjeti
Vidi sveIstražite još lokacija
Povezujemo vas s provjerenim nekretninama prije svih
Popularne pretrage
Popularne lokacije
Nekretnine Zagreb Nekretnine Split Nekretnine Zadar Nekretnine Rijeka Nekretnine Osijek Nekretnine Dubrovnik Nekretnine Pula Nekretnine Šibenik Nekretnine Varaždin Nekretnine Karlovac Nekretnine Makarska Nekretnine TrogirPopularne kategorije
Stanovi na prodaju Kuće na prodaju Vile na prodaju Apartmani na prodaju Stanovi za najam Kuće za najam Vile za najam Apartmani za najam Građevinska zemljišta Poljoprivredna zemljišta Poslovni prostori Luksuzne nekretnineKategorije po lokacijama
Stanovi Zagreb Stanovi Split Stanovi Rijeka Kuće Zadar Vile Hvar Apartmani Rovinj Stanovi Pula Kuće Zagreb Kuće Split Kuće Dubrovnik Kuće Rijeka Vile BračProširena pretraga
Stanovi prodaja Zagreb Prodaja nekretnina Zagreb Prodaja nekretnina Split Prodaja nekretnina Istra Prodaja nekretnina Dubrovnik Kuće prodaja Zagreb Stanovi najam Zagreb Stanovi prodaja Split Kuće prodaja Split Apartmani prodaja Split Stanovi najam Split Apartmani prodaja ZadarPopularne lokacije
Nekretnine Zagreb Nekretnine Split Nekretnine Zadar Nekretnine RijekaPopularne kategorije
Stanovi na prodaju Kuće na prodaju Vile na prodaju Apartmani na prodajuKategorije po lokacijama
Stanovi Zagreb Stanovi Split Stanovi Rijeka Kuće ZadarProširena pretraga
Stanovi prodaja Zagreb Prodaja nekretnina Zagreb Prodaja nekretnina Split Prodaja nekretnina IstraČesto postavljena pitanja
Koji su prvi koraci pri kupnji nekretnine u Hrvatskoj?
Koliki su svi troškovi vezani uz kupnju nekretnine?
Uz cijenu same nekretnine, kupac snosi i dodatne troškove kao što su:
- Porez na promet nekretnina – 3% od tržišne vrijednosti (osim za novogradnju s PDV-om)
- Agencijska provizija – obično 2–3% + PDV (uključuje pravnu provjeru i savjetovanje)
- Javnobilježnički troškovi – ovjera potpisa i izrada solemnizacije ugovora
- Troškovi upisa u zemljišne knjige
- Bankovni troškovi (ako kupujete putem kredita)
Regent će vam unaprijed pripremiti detaljnu procjenu svih troškova kako biste mogli planirati budžet bez iznenađenja.








